Asus NUC 14 Pro Kit handleiding
Handleiding
Je bekijkt pagina 41 van 51

Technical Reference
43
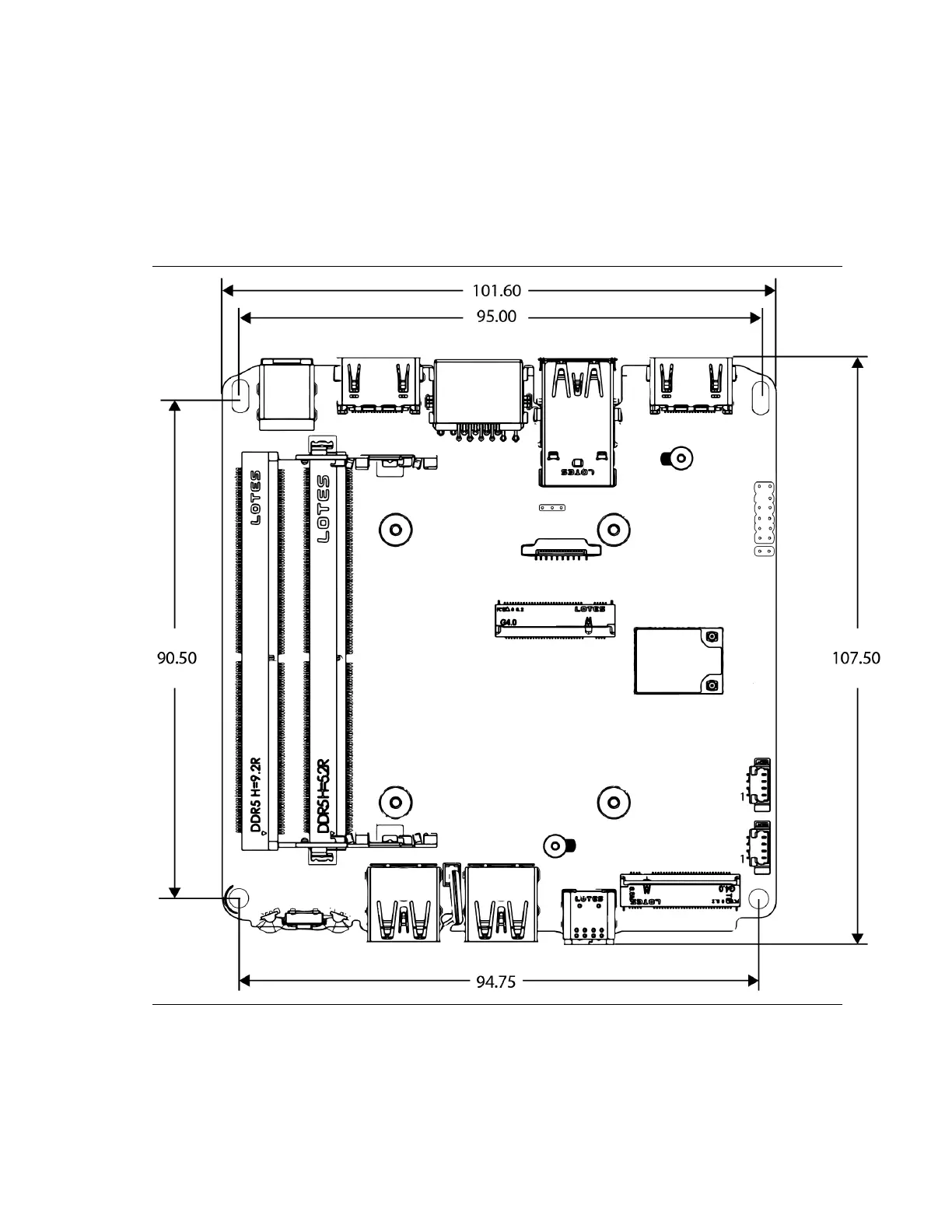
4.2.3 Form Factor
The board is designed to fit into a custom chassis. Figure 17 illustrates the mechanical form factor
for the board. Dimensions are given in millimeters. The outer dimensions are 107.50 millimeters
(front to back from furthest excursion of rear HDMI to front Type C) by 101.60 millimeters (side to
side). The mounting post centers are identified by the 95.00, 94.75, and 90.50 millimeters
measurements.
Figure 17. Board Dimensions
Bekijk gratis de handleiding van Asus NUC 14 Pro Kit, stel vragen en lees de antwoorden op veelvoorkomende problemen, of gebruik onze assistent om sneller informatie in de handleiding te vinden of uitleg te krijgen over specifieke functies.
Productinformatie
Merk | Asus |
Model | NUC 14 Pro Kit |
Categorie | Niet gecategoriseerd |
Taal | Nederlands |
Grootte | 6265 MB |