Asus C5123S-IM-AA handleiding
Handleiding
Je bekijkt pagina 18 van 104

18
Single Board Computer
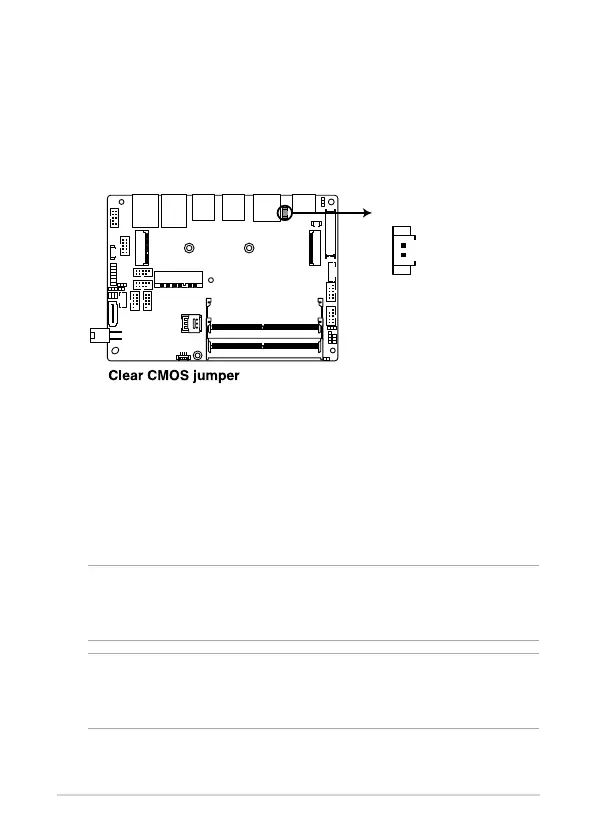
2.4 Onboard jumpers
1. Clear RTC RAM jumper
The Clear RTC RAM jumper allows you to clear the Real Time Clock (RTC)
RAM in the CMOS, which contains the date, time, system passwords,
and system setup parameters.
CLRTC
PIN 1
To erase the RTC RAM:
1. Turn OFF the computer and unplug the power cord.
2. Short-circuit pin 1-2 with a metal object or jumper cap for about
5-10 seconds.
3. Plug the power cord and turn ON the computer.
4. Hold down the <Del> key during the boot process and enter
BIOS setup to re-enter data.
WARNING! DO NOT remove the jumper cap from its default position
except when clearing the RTC RAM. Removing the jumper cap will
cause system boot failure!
NOTE: If the steps above do not help, remove the onboard button cell
battery and move the jumper again to clear the CMOS RTC RAM data.
After clearing the CMOS, reinstall the button cell battery.
Bekijk gratis de handleiding van Asus C5123S-IM-AA, stel vragen en lees de antwoorden op veelvoorkomende problemen, of gebruik onze assistent om sneller informatie in de handleiding te vinden of uitleg te krijgen over specifieke functies.
Productinformatie
| Merk | Asus |
| Model | C5123S-IM-AA |
| Categorie | Niet gecategoriseerd |
| Taal | Nederlands |
| Grootte | 5593 MB |







