Handleiding
Je bekijkt pagina 35 van 44

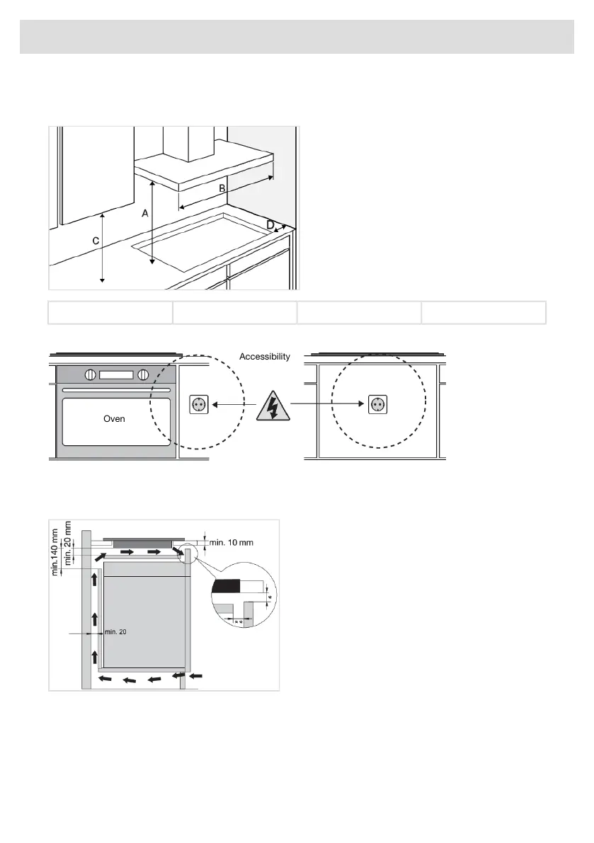
Preparations for installation
Free space around the appliance
D (>mm) = 50C (>mm) = 450B (>mm) = 900A (>mm) = 650
Accessibility
Accessibility
Oven
Air vents in the lower kitchen cabinet
Normal operation of the induction cooking hob electronic components requires sufficient air circulation.
Lower cabinet without an oven
• In the cabinet's rear wall, there must be
an opening with a height of at least 140
mm along the entire width of the cabinet.
• There should be at least 20 mm of
clearance between the lower end of the
appliance and the partition panel.
Adequate ventilation should be allowed
from the rear side.
The hob is fitted with a fan located in its lower part. If there is a drawer underneath the countertop,
do not use it to store small objects or paper as these could, if sucked into the fan, damage the fan
and the cooling system. Moreover, do not use the drawer to store aluminium foil or flammable
substances or liquids (such as sprays). Keep such substances away from the cooking hob. Danger
of explosion! There should be at least 20 mm of clearance between the contents of the drawer and
the fan inlet vents.
35
Installation
Bekijk gratis de handleiding van Asko HI2643FBG1, stel vragen en lees de antwoorden op veelvoorkomende problemen, of gebruik onze assistent om sneller informatie in de handleiding te vinden of uitleg te krijgen over specifieke functies.
Productinformatie
| Merk | Asko |
| Model | HI2643FBG1 |
| Categorie | Fornuis |
| Taal | Nederlands |
| Grootte | 2823 MB |







