Handleiding
Je bekijkt pagina 20 van 44

20
OPERATION
In the event a gas leak risk
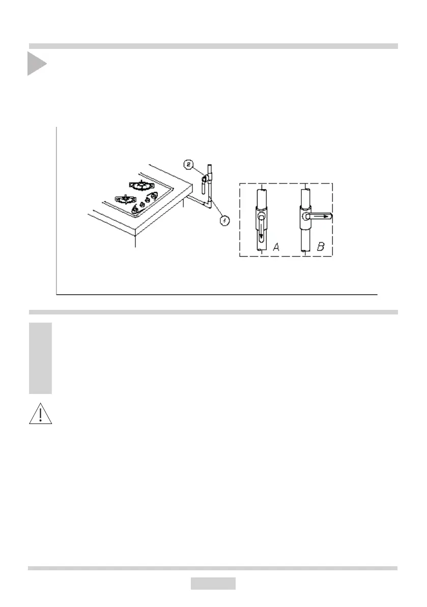
1 gas system
2 gas system shut-o valve
A valve "open"
B valve "closed"
In the event of a fault
● turn o the burners
● close the gas system shut-o valve
● Ventilate the kitchen
● report the fault to a service centre or a qualied gas tter to have it repaired
● do not use your gas hob until the fault has been repaired.
Some minor faults may be repaired by the user, according to the instructions supplied.
BURNER does not ignite, I can smell leaking gas
● close the burner valves
● close the gas system shut-o valve
● Ventilate the room
● remove the burner
● clean and purge the ame outlets
● replace the burner
● retry to ignite the burner
NO FLAME? HAVE THE APPLIANCE REPAIRED!
Bekijk gratis de handleiding van Amica EKPG 13030 E, stel vragen en lees de antwoorden op veelvoorkomende problemen, of gebruik onze assistent om sneller informatie in de handleiding te vinden of uitleg te krijgen over specifieke functies.
Productinformatie
| Merk | Amica |
| Model | EKPG 13030 E |
| Categorie | Fornuis |
| Taal | Nederlands |
| Grootte | 3195 MB |







