Amica AKG 3840 W handleiding

88 pagina's
PDF beschikbaar

Handleiding

Je bekijkt pagina 82 van 88
- 82 -
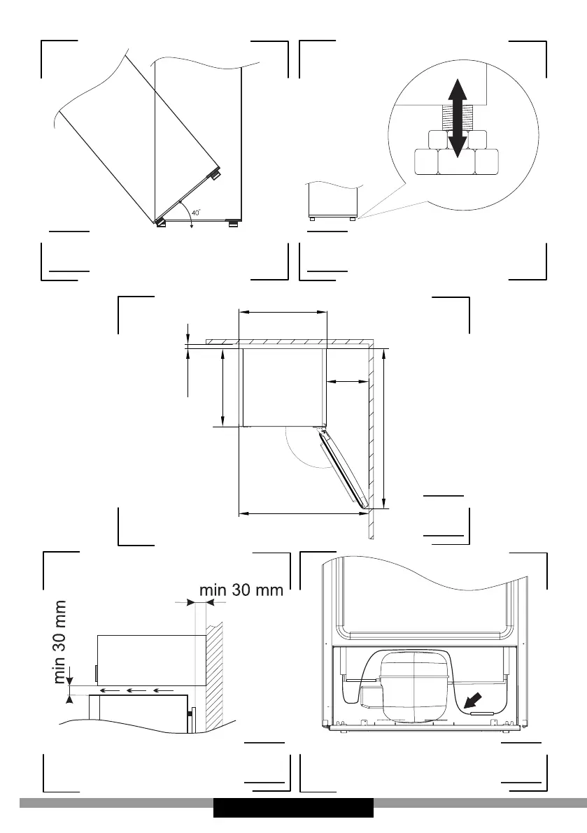
86
5
125-135
o
2
15
23


2 3

Bekijk gratis de handleiding van Amica AKG 3840 W, stel vragen en lees de antwoorden op veelvoorkomende problemen, of gebruik onze assistent om sneller informatie in de handleiding te vinden of uitleg te krijgen over specifieke functies.

Productinformatie

MerkAmica
ModelAKG 3840 W
CategorieKoelkast
TaalNederlands
Grootte7881 MB