Amana MTK2230P handleiding
Handleiding
Je bekijkt pagina 10 van 24

10
REMARQUES:
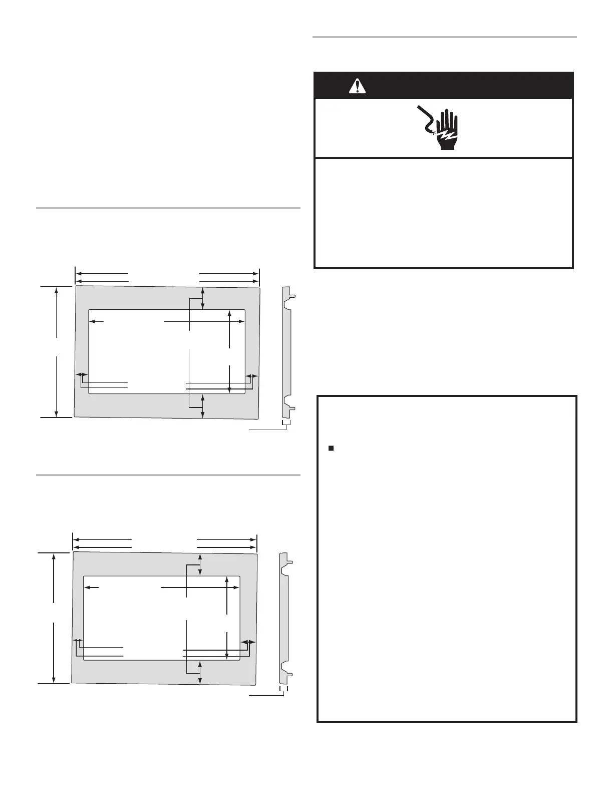
■ Les critères de profondeur dépendent des dimensions de
la prise de courant et de son emplacement (selon qu’elle se
trouve ou non dans la zone recommandée). Voir l’illustration
et le tableau ci-dessus.
■ La dimension de la hauteur est essentielle: 17
1
/
8
po
(43,5cm) minimum, 17
3
/
16
(43,7cm) maximum.
■ La mesure de la largeur a une tolérance de ±1/16po (2mm).
■ La dimension minimale de 3
15
/
16
po (10cm) correspond à la
distance du plafond de l’ouverture d’encastrement du four
inférieur au plancher de l’ouverture d’encastrement du four à
micro-ondes.
■ Le cadre de la trousse de garniture dépasse de 13/16po
(2,14cm) au-dessus et au-dessous de l’ouverture
d’encastrement.
Dimensions du cadre de la trousse de
garniture – 1•6 pi
3
•
*Trousse de garnitures de 27po (68,6cm)
**Trousse de garnitures de 30po (76,2cm)
Dimensions du cadre de la trousse de
garniture – 2•2 pi
3
•
*Trousse de garnitures de 27po (68,6cm)
**Trousse de garnitures de 30po (76,2cm)
Spécifications électriques
Observer les dispositions de tous les codes et règlements en
vigueur.
Exigences:
■ Alimentation de 120 V CA à 60Hz et protégée par un fusible
ou un disjoncteur temporisé de 15 ou 20 A seulement.
Recommandation:
■ Fusible ou disjoncteur temporisé.
■ Circuit distinct exclusif au four à micro-ondes.
26
13
/
16
po (68,08 cm)*
2
(
5,87 cm)*
22
7
/
8
po
(55,59 cm)
11
9
/
16
po
(29,38 cm)
18
13
/
16
po
(47,78 cm)
3
9
/
16
po (9,09 cm)
29 *
3
3
/
8
po (8,64 cm)
3
3
/
4
(9,59 cm)**
5
/
16
3
/
4
po (75,48 cm)**
1
1
/
8
po (2,92 cm)
po
po
26
13
/
16
po (68,08 cm)*
2
(
5,87 cm)*
22
7
/
8
po
(55,59 cm)
11
9
/
16
po
(29,38 cm)
18
13
/
16
po
(47,78 cm)
3
9
/
16
po (9,09 cm)
29 *
3
3
/
8
po (8,64 cm)
3
3
/
4
(9,59 cm)**
5
/
16
3
/
4
po (75,48 cm)**
1
1
/
8
po (2,92 cm)
po
po
26
13
/
16
po
(68,08 cm)*
24
13
/
16
po
(63,06 cm)
13
1
/
4
po
(33,57
18
13
/
16
po
(47,78 cm)
2
5
/
8
po (6,69 cm)
29 *
2
11
/
16
po (6,85 cm)
2
13/16
5
/
16
po
3
/
4
po
(75,48 cm)**
1
3
/
16
po (2,99 cm)
(5,87 cm)**
po
cm)
(2,14 cm)*
26
13
/
16
po
(68,08 cm)*
24
13
/
16
po
(63,06 cm)
13
1
/
4
po
(33,57
18
13
/
16
po
(
47,78 cm)
2
5
/
8
po (6,69 cm)
29
*
2
11
/
16
po (6,85 cm)
2
13/16
5
/
16
po
3
/
4
po
(75,48 cm)**
1
3
/
16
po (2,99 cm)
(5,87 cm)**
po
cm)
(2,14 cm)*
AVERTISSEMENT
Risque de choc électrique
Brancher sur une prise à 3 alvéoles reliée à la terre.
Ne pas enlever la broche de liaison à la terre.
Ne pas utiliser un adaptateur.
Ne pas utiliser un câble de rallonge.
Le non-respect de ces instructions peut causer
un décès, un incendie ou un choc électrique.
INSTRUCTIONS DE LIAISON
À LA TERRE
CONSERVEZ CES
INSTRUCTIONS
Pour tout appareil ménager connecté par un cordon
de courant électrique :
Il faut que le four à micro-ondes soit relié à la terre. En
cas de court-circuit électrique, la liaison à la terre réduit le
risque de choc électrique car le courant électrique
dispose d’un itinéraire direct d’acheminement à la terre.
Le four à micro-ondes est doté d’un cordon de courant
électrique qui comporte un fil de liaison à la terre, avec
broche de liaison à la terre. On doit brancher la fiche sur
une prise de courant convenablement installée et reliée à
la terre.
AVERTISSEMENT :
L’utilisation incorrecte du
dispositif de liaison à la terre peut susciter un risque de choc
électrique. L’utilisateur qui ne comprend pas bien les
instructions de liaison à la terre, ou qui n’est pas certain que
le four à micro-ondes soit convenablement relié à la terre,
devrait consulter un électricien ou un technicien qualifié.
Ne pas utiliser un câble de rallonge. Si le cordon de
courant électrique est trop court, demander à un électricien
ou un technicien qualifié d’installer une prise de courant à
proximité du four à micro-ondes.
Bekijk gratis de handleiding van Amana MTK2230P, stel vragen en lees de antwoorden op veelvoorkomende problemen, of gebruik onze assistent om sneller informatie in de handleiding te vinden of uitleg te krijgen over specifieke functies.
Productinformatie
Merk | Amana |
Model | MTK2230P |
Categorie | Niet gecategoriseerd |
Taal | Nederlands |
Grootte | 3413 MB |