Alto-Shaam QC3-3 handleiding
Handleiding
Je bekijkt pagina 16 van 61

16 MN-38954 • Rev 0 • 04/17 • Quickchillers
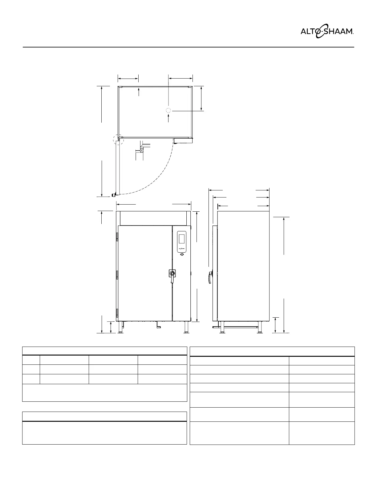
Dimensions
QC3-100R
51" (1295mm)
85-1/8" to 87-1/8 (2162mm to 2213mm)
77-5/8" (1970mm)
8-1/8" (205mm) Condensate Drain
Electrical Connection
14" (355mm)
Electrical
Connection
Condensate
Drain
76" (1930mm)
15-1/2" (394mm) Hinged Left
35-1/2" (902mm) Hinged Right
17-5/8"
(447mm)
1-1/2"
(38mm)
42" (1067mm)
39" (991mm)
36" (914mm)
9-7/8" to 11-7/8" (251mm to 302mm)
75-1/4" (1910mm)
Weight (est.)
QC3-100R Pan Cart Plate Cart
Net Contact factory 120 lb (54 kg) Contact factory
Ship Contact factory 161 lb (73 kg) Contact factory
Carton dimensions: (L x W x H)
57" x 44" x 93" (1448mm x 1118mm x 2362mm)
Remote BTU Requirements
Freeze mode: 14,690 BTU's at 90°F ambient
-5°F (-21°C) evaporator temperature
Product/Pan Capacity
Maximum product capacity (approx.) 480 lb (218 kg)
Maximum product volume 300 quarts (380 liters)
Maximum chilling capacity (approx.) 240 lb (109 kg)
Maximum chilling volume 150 quarts (190 liters)
Full-size pans
20" x 12" x 2-1/2"
Forty (40)
Gastronorm 1/1
530mm x 325mm x 65mm
Forty (40)
Full-size sheet pans
18" x 26" x 1"
Twenty (20)
Additional optional wire
shelves required.
Bekijk gratis de handleiding van Alto-Shaam QC3-3, stel vragen en lees de antwoorden op veelvoorkomende problemen, of gebruik onze assistent om sneller informatie in de handleiding te vinden of uitleg te krijgen over specifieke functies.
Productinformatie
Merk | Alto-Shaam |
Model | QC3-3 |
Categorie | Koelkast |
Taal | Nederlands |
Grootte | 9903 MB |