Alto-Shaam AR-6G handleiding
Handleiding
Je bekijkt pagina 6 van 35

AR-6G Rotisserie Operation & Care Manual • 4
InstallatIon
AR-6G Rotisserie Operation & Care Manual • 4
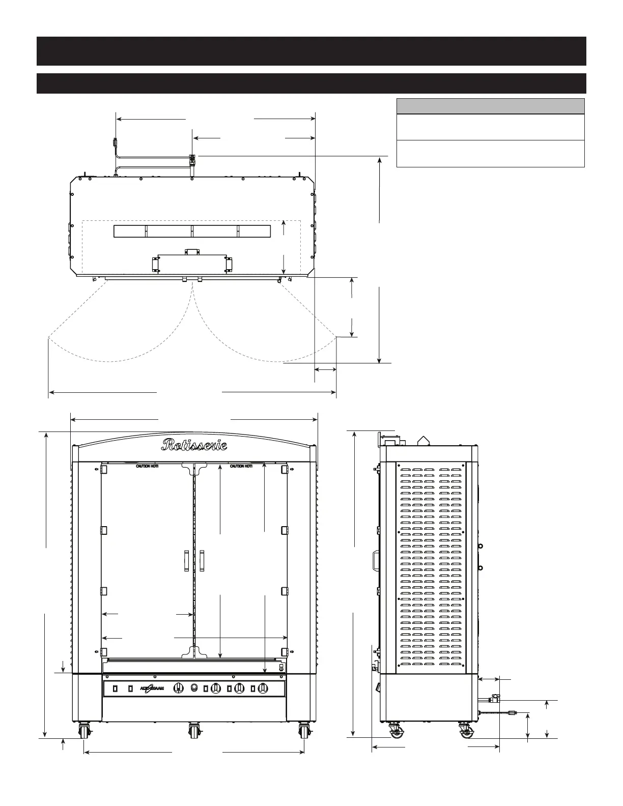
technIcal specIfIcatIons
78-7/8" (2003mm)
8-7/16"
(213mm)
18-3/16"
(461mm)
54-5/8" (1387mm)
50-7/8" (1292mm)
TO POWER CORD
31-7/16" (798mm)
TO GAS LINE
62-15/16" (1599mm)
78-1/8" (1983mm)
16-3/4 " (425mm)
TO DRIP TRAY
32-5/8" (828mm)
6-1/2" (165mm)
TO POWER CORD
5-5/8" (142mm)
TO GAS LINE
9-3/4"
(247mm)
TO GAS LINE
78-1/8" (1983mm)
50" (1193mm)
CAVITY WIDTH
23-1/2" (597mm)
DOOR WIDTH
49-5/8" (1260mm)
DOOR HEIGHT
53-3/4" (1365mm)
CAVITY HEIGHT
12-11/16"
(321mm)
CAVITY DEPTH
56" (1424mm)
CORD LENGTH
10' (3048mm)
DImensIons (h x w x d)
exterior: 78-1/8" x 62-15-16" x 32-5/8"
(1983mm x 1599mm x 828mm)
interior: 53-3/4" x 50" x 12-11/16"
(1365mm x 1193mm x 321mm)
Bekijk gratis de handleiding van Alto-Shaam AR-6G, stel vragen en lees de antwoorden op veelvoorkomende problemen, of gebruik onze assistent om sneller informatie in de handleiding te vinden of uitleg te krijgen over specifieke functies.
Productinformatie
Merk | Alto-Shaam |
Model | AR-6G |
Categorie | Oven |
Taal | Nederlands |
Grootte | 6846 MB |