Alto-Shaam 500-HW/D4 handleiding
Handleiding
Je bekijkt pagina 9 van 23

Hot Food Drop-In Well Operation & Care Manual • 7
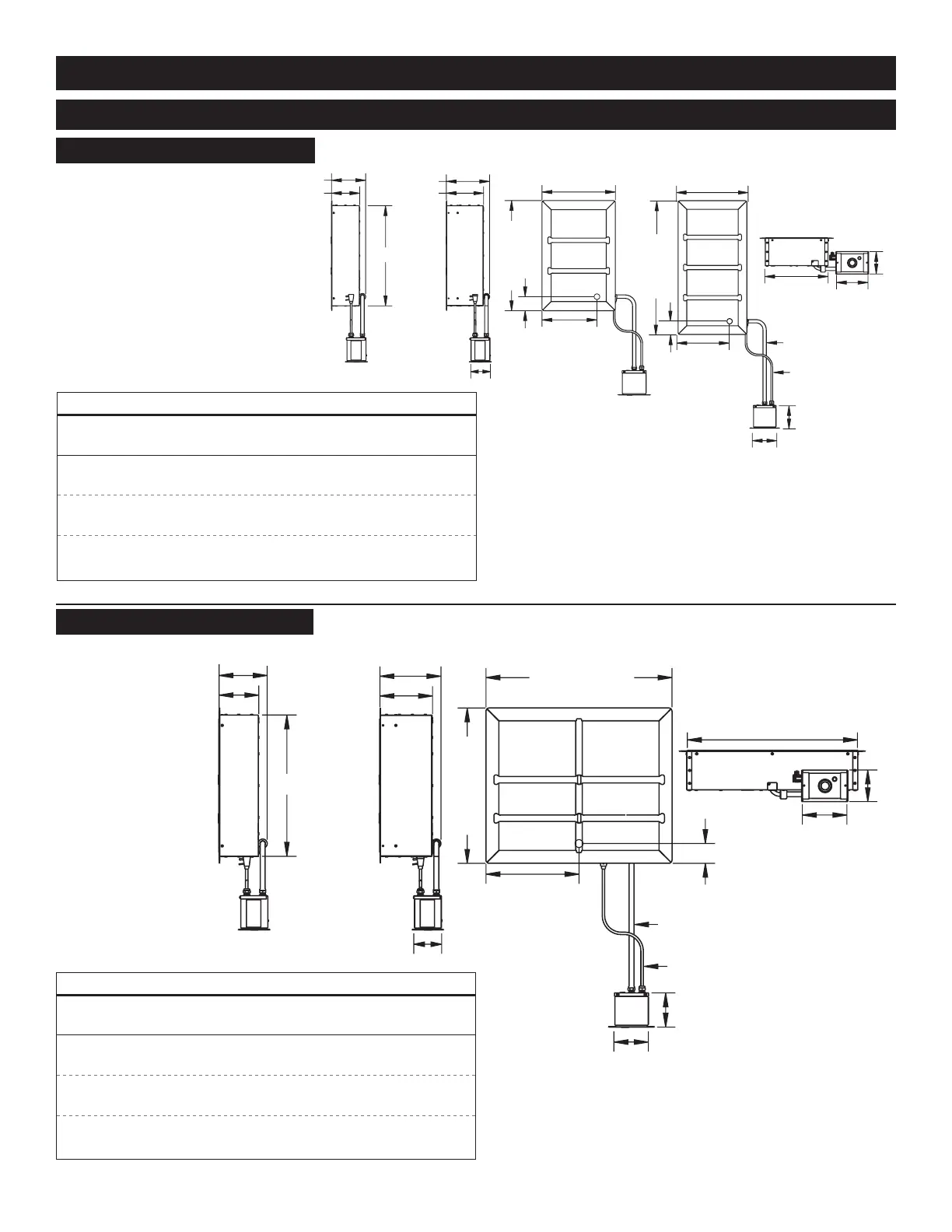
INSTALLATION
HW/D4
DEPTH
HW/D6
DEPTH
7-1/2" (190mm)
6-3/16" (157mm)
9-1/2" (241mm)
8-3/16" (208mm)
7" (175mm)
5" (125mm)
12-1/16" (306mm)
to electrical cord
3-1/8" (79mm)
to electrical cord
24-3/16" (614mm)
16-1/8" (409mm)
22-3/16" (563mm)
13-13/16" (350mm)
Control
Control
4-5/16" (110mm)
5-3/8" (136mm)
12" (305mm)
to electrical cord
3-1/8" (78mm)
to electrical cord
31-1/4" (792mm)
Control
5-5/16" (135mm)
HW/D443
WIDTH & LENGTH
HW/D4
WIDTH & LENGTH
16-1/8" (409mm)
One (1) flexible
water-tight tether
36" (914mm)
Electrical Cord
60" (1524mm)
100-HW/D4 & 100-HW/D6
HW/D4
DEPTH
HW/D6 DEPTH
7-1/2" (190mm)
6-3/16" (157mm)
5" (125mm)
9-1/2" (241mm)
8-3/16" (208mm)
22-3/16" (563mm)
24-3/16" (614mm)
14-1/2" (367mm)
to electrical cord
3-1/16" (78mm)
to electrical cord
28-15/16" (734mm)
One (1) flexible
water-tight tether
36" (914mm)
Electrical Cord
60" (1524mm)
7" (175mm)
6-3/8" (162mm)
26-9/16" (675mm)
Control
Control
5-5/16" (135mm)
4-5/16" (110mm)
DIMENSIONS • CAPACITY
200-HW/D4 & 200-HW/D6
PRODUCT\PAN CAPACITY (based on 4" deep pans)
48 lb (21.6 kg) maximum
max. volume: 30 qt (38 L)
FULL-SIZE PANS*: Two (2) 12" x 20" x 4"
GN 1/1 (325mm x 530mm x 102mm)
HALF-SIZE PANS*: Four (4) 12" x 10" x 4"
GN 1/2 (325mm x 265mm x 102mm)
THIRD-SIZE PANS*: Six (6) 12" x 6" x 4"
GN 1/3 (325mm x 176mm x 102mm)
* will also accept 2-1/2" (65mm) deep pans; d6 units will accept 6" (153mm) deep pans
* will also accept 2-1/2" (65mm) deep pans; d6 units will accept 6" (153mm) deep pans
PRODUCT\PAN CAPACITY (based on 4" deep pans)
D4: 24 lb (10.8 kg) / D443: 32 lbs (14.6 kg) max.
max. volume: D4: 15 qt. (19 L) / D443: 21 qt (24 L)
FULL-SIZE PANS*: One (1) 12" x 20" x 4"
GN 1/1 (325mm x 530mm x 102mm)
HALF-SIZE PANS*: Two (2) 12" x 10" x 4"
GN 1/2 (325mm x 265mm x 102mm)
THIRD-SIZE PANS*: D4: Three (3) / D443: Four (4) 12" x 6' x 4"
GN 1/3 (325mm x 176mm x 102mm)
Bekijk gratis de handleiding van Alto-Shaam 500-HW/D4, stel vragen en lees de antwoorden op veelvoorkomende problemen, of gebruik onze assistent om sneller informatie in de handleiding te vinden of uitleg te krijgen over specifieke functies.
Productinformatie
| Merk | Alto-Shaam |
| Model | 500-HW/D4 |
| Categorie | Niet gecategoriseerd |
| Taal | Nederlands |
| Grootte | 3910 MB |







