Alto-Shaam 300-HWIS/D6 handleiding
Handleiding
Je bekijkt pagina 9 van 45

MN-37234 (Rev. 0) 03/15 • Hot Food Drop-In Well • 7
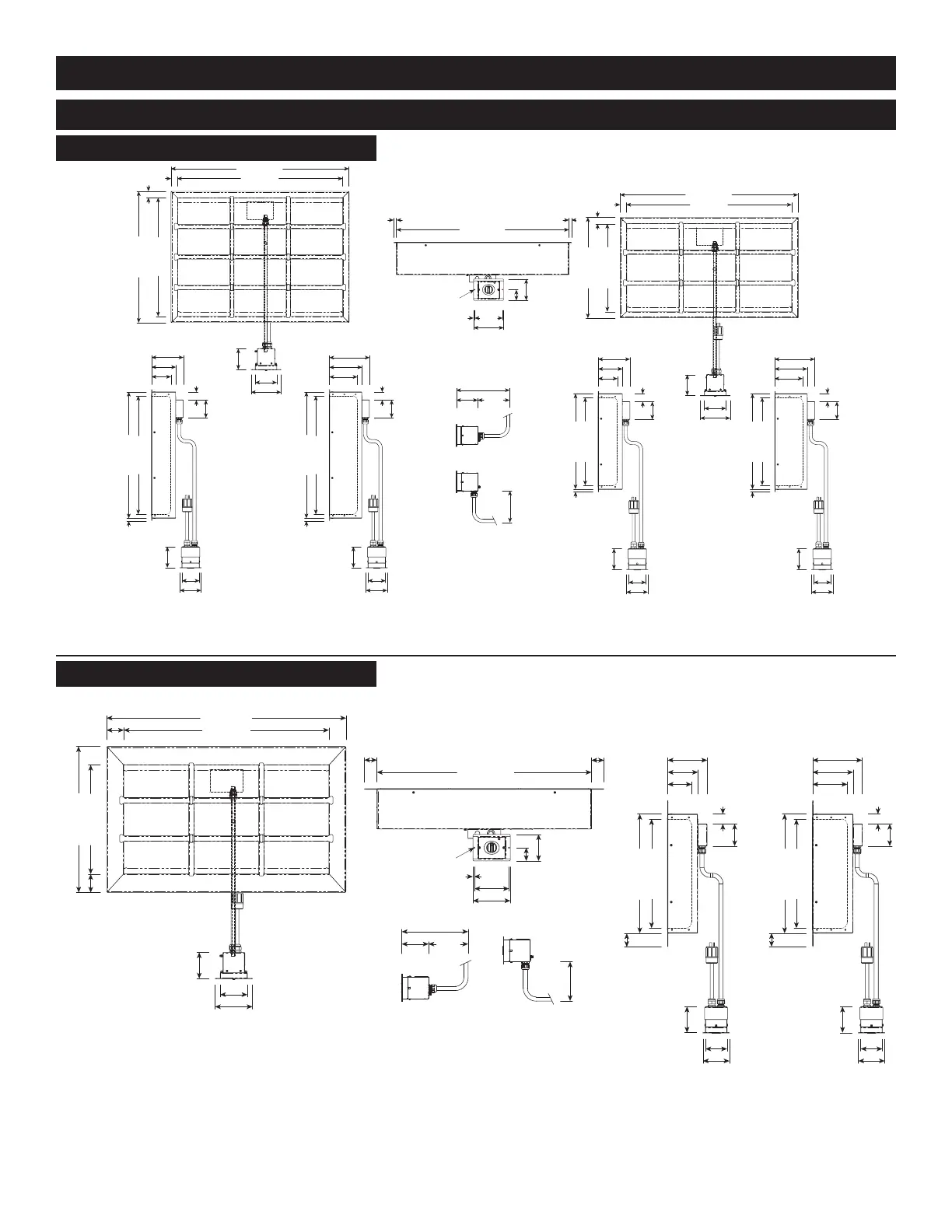
INSTALLATION
DIMENSIONS
39-5/8" (1007mm)
11/16" (16mm)
FLANGE
11/16" (16mm)
FLANGE
6-7/16"
(163mm)
6-15/16" (175mm)
1/4" (6mm)
Ø 1/4" (5mm)
4-15/16" (125mm)
2-1/2" (62mm)
300-HW/D6
1-9/16" (39mm)
40-15/16" (1039mm)
37-7/8" (962mm)
23-1/8" (586mm)
1-1/2" (37mm)
20-3/16" (512mm)
WELL
4-13/16"
(122mm)
6-15/16" (175mm)
5" (127mm)
300-HW/D6 & /D4
4-13/16"
(122mm)
6-15/16" (175mm)
5" (127mm)
1-9/16" (39mm)
40-15/16" (1039mm)
37-7/8" (962mm)
WELL
30-3/16" (765mm)
27-1/4" (691mm)
WELL
1-1/2" (38mm)
300-HW/D643 & /D443
300-HW/D6
9-1/4" (234mm)
7-1/2" (190mm)
6-3/8" (162mm)
WELL
1-7/8" (46mm)
4-1/8" (104mm)
20-3/16" (512mm)
WELL
22-1/16" (559mm)
9/16" (14mm)
FLANGE
4-13/16"
(122mm)
4-15/16" (125mm)
4" (102mm)
300-HW/D4
1-7/8" (46mm)
4-1/8" (104mm)
20-3/16" (512mm)
WELL
22-1/16" (559mm)
9/16" (14mm)
FLANGE
4-13/16"
(122mm)
4-15/16" (125mm)
4" (102mm)
7-5/16" (185mm)
5-9/16" (140mm)
4-3/8" (111mm)
WELL
300-HW/D443
1-7/8" (46mm)
4-1/8" (104mm)
4-13/16"
(122mm)
4-15/16" (125mm)
4" (102mm)
7-5/16" (185mm)
5-9/16" (140mm)
4-3/8" (111mm)
WELL
27-1/4" (691mm)
WELL
29-1/16" (738mm)
9/16" (14mm)
FLANGE
300-HW/D643
9-3/16" (233mm)
7-7/16" (189mm)
6-3/8" (162mm)
WELL
1-7/8" (46mm)
4-1/8" (104mm)
4-13/16"
(122mm)
4-15/16" (125mm)
4" (102mm)
27-1/4" (691mm)
WELL
29-1/16" (738mm)
9/16" (14mm)
FLANGE
10-13/16" (274mm)
6"
(152mm)
4-13/16"
(122mm)
CONDUIT WHEN
EXITING BACK
6" (152mm)
CONDUIT WHEN
EXITING BOTTOM
3-3/16" (81mm)
44-1/4" (1123mm)
37-7/8" (962mm)
WELL
27-1/16" (686mm)
20-3/16" (512mm)
WELL
3-7/16" (87mm)
4-13/16"
(122mm)
6-15/16" (175mm)
5" (127mm)
39-11/16" (1007mm)
2-5/16" (59mm)
FLANGE
2-5/16" (59mm)
FLANGE
6-15/16" (175mm)
6-7/16" (163mm)
1/4"(6mm)
Ø 1/4" (5mm)
4-15/16" (125mm)
2-1/2" (62mm)
7-5/16" (185mm)
5-9/16" (140mm)
4-3/8" (111mm)
WELL
20-3/16" (512mm)
WELL
22-1/16" (559mm)
2-1/2" (63mm)
FLANGE
4-13/16"
(122mm)
4-15/16" (125mm)
4" (102mm)
1-7/8" (46mm)
4-1/8" (104mm)
300-HWLF/D4
9-1/8" (232mm)
7-7/16" (189mm)
6-3/8" (162mm)
WELL
20-3/16" (512mm)
WELL
22-1/16" (559mm)
2-1/2" (63mm)
FLANGE
4-13/16"
(122mm)
4-15/16" (125mm)
4" (102mm)
1-7/8" (46mm)
4-1/8" (104mm)
300-HWLF/D6
10-13/16" (274mm)
6"
(152mm)
4-13/16"
(122mm)
CONDUIT WHEN
EXITING BACK
6" (152mm)
CONDUIT WHEN
EXITING BOTTOM
300-HWLF/D4 & 300-HWLF/D6
300-HW/D4, D6, D443, D643
Bekijk gratis de handleiding van Alto-Shaam 300-HWIS/D6, stel vragen en lees de antwoorden op veelvoorkomende problemen, of gebruik onze assistent om sneller informatie in de handleiding te vinden of uitleg te krijgen over specifieke functies.
Productinformatie
| Merk | Alto-Shaam |
| Model | 300-HWIS/D6 |
| Categorie | Niet gecategoriseerd |
| Taal | Nederlands |
| Grootte | 7955 MB |







