Alto-Shaam 300-HWIS/D6 handleiding
Handleiding
Je bekijkt pagina 6 van 45

MN-37234 (Rev. 0) 03/15 • Hot Food Drop-In Well • 4
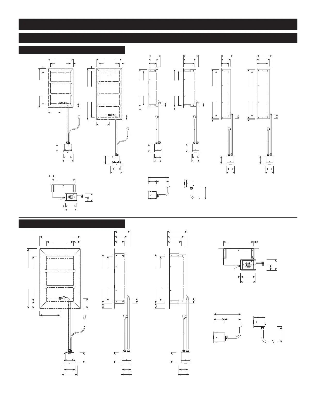
INSTALLATION
23-1/8" (586mm)
2-3/16" (71mm)
1-1/2"
(37mm)
1-9/16"
(39mm)
20-3/16" (512mm)
WELL
7-1/2"
(190mm)
15" (380mm)
12" (304mm)
WELL
4-7/8"
(123mm)
6-15/16" (175mm)
5" (127mm)
/D4 AND /D6
30-3/16" (765mm)
2-13/16" (71mm)
1-1/2"
(37mm)
27-1/4" (691mm)
WELL
7-1/2"
(190mm)
1-9/16"
(39mm)
15" (381mm)
12" (304mm)
WELL
4-7/8"
(123mm)
6-15/16" (175mm)
5" (127mm)
/D443 AND /D643
2-1/4" (57mm)
4-7/8"
(123mm)
22-1/16" (559mm)
9/16"
(14mm)
FLANGE
20-3/16" (512mm)
WELL
7" (177mm)
5-9/16" (140mm)
4-3/8" (111mm)
WELL
4-15/16" (125mm)
4" (102mm)
100-HW/D4
4-15/16" (125mm)
4" (102mm)
4-7/8"
(123mm)
2-1/4" (57mm)
20-3/16" (512mm)
WELL
22-1/16" (559mm)
9/16"
(14mm)
FLANGE
8-7/8" (225mm)
7-7/16" (189mm)
6-3/8" (162mm)
WELL
100-HW/D6
6-5/16" (159mm)
5-9/16" (140mm)
4-3/8" (111mm)
WELL
2-5/8" (67mm)
4-7/8"
(123mm)
4-15/16" (125mm)
4" (102mm)
100-HW/D443
27-1/4" (691mm)
WELL
29-1/16" (738mm)
9/16"
(14mm)
FLANGE
8-3/16" (207mm)
7-7/16" (189mm)
6-3/8" (162mm)
WELL
3" (75mm)
4-7/8"
(123mm)
4-15/16" (125mm)
4" (102mm)
100-HW/D643
27-1/4" (691mm)
WELL
29-1/16" (738mm)
9/16"
(14mm)
FLANGE
13-5/8" (345mm)
3/4" (18mm)
FLANGE
Ø 1/4" (5mm)
6-15/16" (175mm)
6-7/16"
(163mm)
1/4" (5mm)
4-15/16"
(125mm)
2-1/2"
(62mm)
100-HW
10-13/16" (274mm)
6"
(152mm)
4-13/16"
(122mm)
CONDUIT WHEN
EXITING BACK
6" (152mm)
CONDUIT WHEN
EXITING BOTTOM
100-HW/D4, D6, D443, D643
27-1/16" (686mm)
4-3/4" (121mm)
3-7/16"
(87mm)
20-3/16" (512mm)
WELL
9-3/16" (233mm)
6-15/16" (175mm)
5" (127mm)
4-7/8"
(123mm)
3-3/16"
(81mm)
18-5/16" (465mm)
12" (304mm)
WELL
100-HWLF/D4
7" (177mm)
5-9/16" (140mm)
4-3/8" (111mm)
WELL
20-3/16" (512mm)
WELL
22-1/16" (559mm)
2-1/2" (63mm)
FLANGE
4-15/16" (125mm)
4" (102mm)
4-7/8"
(123mm)
2-1/4" (57mm)
100-HWLF/D6
8-7/8" (225mm)
7-7/16" (189mm)
6-3/8" (162mm)
WELL
20-3/16" (512mm)
WELL
22-1/16" (559mm)
2-1/2" (63mm)
FLANGE
4-15/16" (125mm)
4" (102mm)
4-7/8"
(123mm)
2-1/4" (57mm)
13-5/8" (345mm) 2-3/8" (60mm)
FLANGE
4-15/16"
(125mm)
2-1/2"
(62mm)
6-15/16" (175mm)
6-7/16"
(163mm)
1/4" (6mm)
100-HWLF/D6
Ø 1/4" (5mm)
10-13/16" (274mm)
6"
(152mm)
4-13/16"
(122mm)
CONDUIT WHEN
EXITING BACK
6" (152mm)
CONDUIT WHEN
EXITING BOTTOM
DIMENSIONS
100-HWLF/D4 & 100-HWLF/D6
Bekijk gratis de handleiding van Alto-Shaam 300-HWIS/D6, stel vragen en lees de antwoorden op veelvoorkomende problemen, of gebruik onze assistent om sneller informatie in de handleiding te vinden of uitleg te krijgen over specifieke functies.
Productinformatie
| Merk | Alto-Shaam |
| Model | 300-HWIS/D6 |
| Categorie | Niet gecategoriseerd |
| Taal | Nederlands |
| Grootte | 7955 MB |







