Alto-Shaam 1767-SK handleiding
Handleiding
Je bekijkt pagina 7 van 44

MN-29756 (Rev. 4) 10/16 • TH-SK Series Cook, Hold, Smoke • 5
21" (532mm)
Shown with
optional bumper
29-7/8" (758mm)
41-1/16" (1043mm)
Electrical
Connection
44-1/16" (1118mm)
58-1/4" (1479mm)
28-13/16" (732mm)
21-7/8" (556mm)
16" (406mm)
31-7/8" (809mm)
with 2-1/2" (64mm) casters*
3-5/8" (91mm)
18-1/16" (458mm)
Pass-Through
Option
Pass-Through
Option
19" (483mm)
Electrical
Connection
26-3/8" (670mm)
*33-3/8" (848mm) - with optional 3-1/2" (89mm) casters
*35-1/4" (894mm) - with optional 5" (127mm) casters
*33-3/4" (857mm) - with optional 6" (152mm) legs
19-1/8" (486mm)
14-1/2"
(368mm)
29" (737mm)
26-9/16" (675mm)
Electrical
Connection
Cord Length
120V - 5 ft. (1524mm)
208-240V - 5 ft. (1524mm)
230V - 8 ft. (2438mm)
Shown with
optional bumper
Electrical
Connection
Pass-Through
Option
Electrical
Connection
Pass-Through
Option
Electrical
Connection
Shown with
optional bumper
25-5/8" (651mm)
54-1/8" (1373mm)
3-5/8" (91mm)
23-5/8" (600mm)
26-5/8" (676mm)
28-13/16" (732mm)
24-1/8" (612mm)
17" (432mm)
34" (864mm)
31-5/8" (802mm)
28-9/16" (726mm)
79" (2006mm)
34-7/8" (886mm)
*33-3/8" (848mm) - with optional 3-1/2" (89mm) casters
*35-1/4" (894mm) - with optional 5" (127mm) casters
*33-3/4" (857mm) - with optional 6" (152mm) legs
26-3/4" (679mm)
Cord Length
120V - 5 ft. (1524mm)
208-240V - 5 ft. (1524mm)
230V - 8 ft. (2438mm)
31-7/8" (809mm)
with 2-1/2" (64mm) casters*
31-3/8" (797mm)
56-7/8" (1444mm)
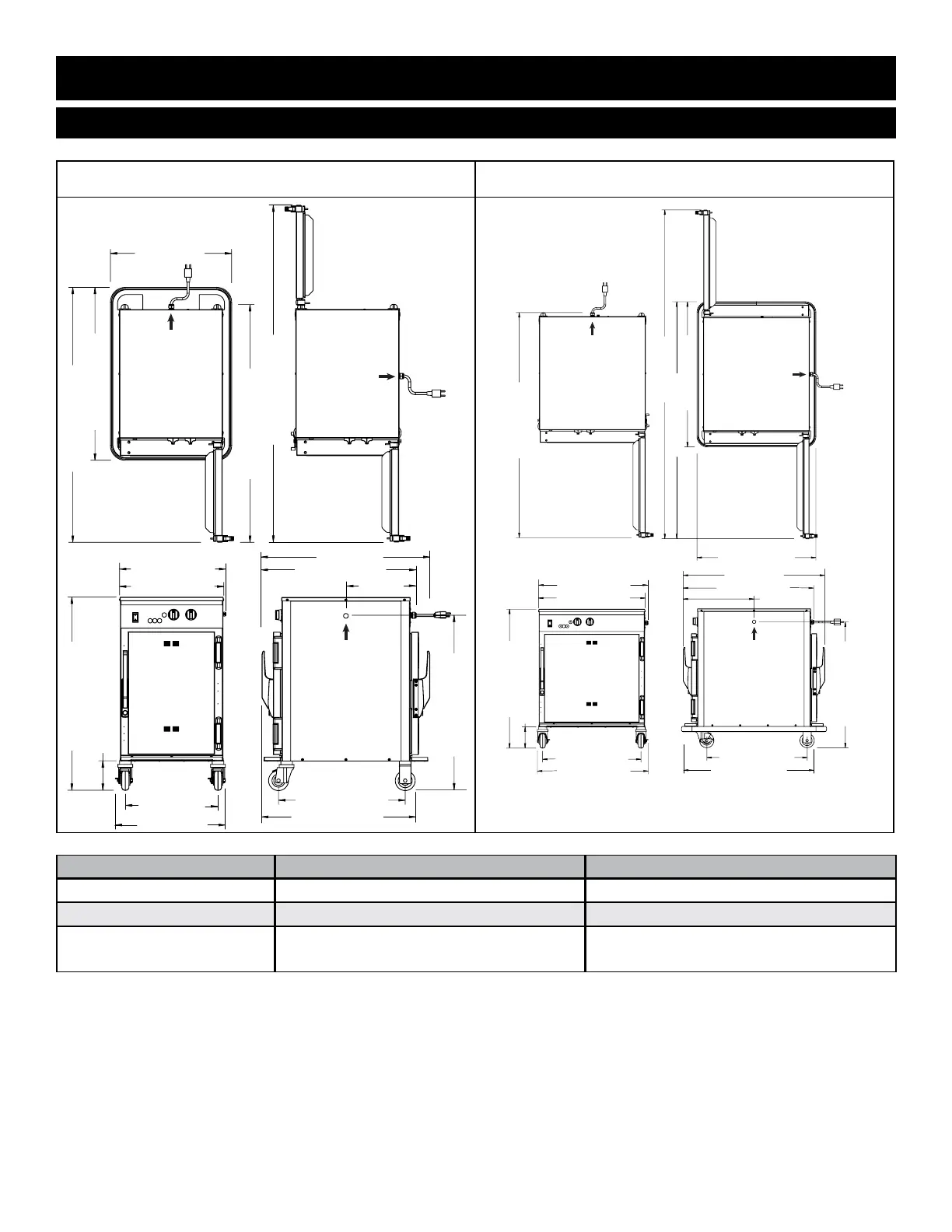
500-TH-II 750-TH-II
SITE INSTALLATION
INSTALLATION
Model > 500-TH-II 750-TH-II
Net Weight
130 lb (59 kg) 194 lb (88 kg)
Ship Weight
166 lb (75 kg) 264 lb (120 kg)
Product/Pan Capacity
40 lb (18kg) maximum
Volume maximum: 30 quarts (38 liters)
100 lb (45kg) maximum
Volume maximum: 75 quarts (95 liters)
Dimension Drawings, weights &
capacities
Bekijk gratis de handleiding van Alto-Shaam 1767-SK, stel vragen en lees de antwoorden op veelvoorkomende problemen, of gebruik onze assistent om sneller informatie in de handleiding te vinden of uitleg te krijgen over specifieke functies.
Productinformatie
Merk | Alto-Shaam |
Model | 1767-SK |
Categorie | Oven |
Taal | Nederlands |
Grootte | 7268 MB |