Alto-Shaam 1000-SK-II handleiding
Handleiding
Je bekijkt pagina 10 van 44

MN-29756 (Rev. 4) 10/16 • TH-SK Series Cook, Hold, Smoke • 8
SITE INSTALLATION
INSTALLATION
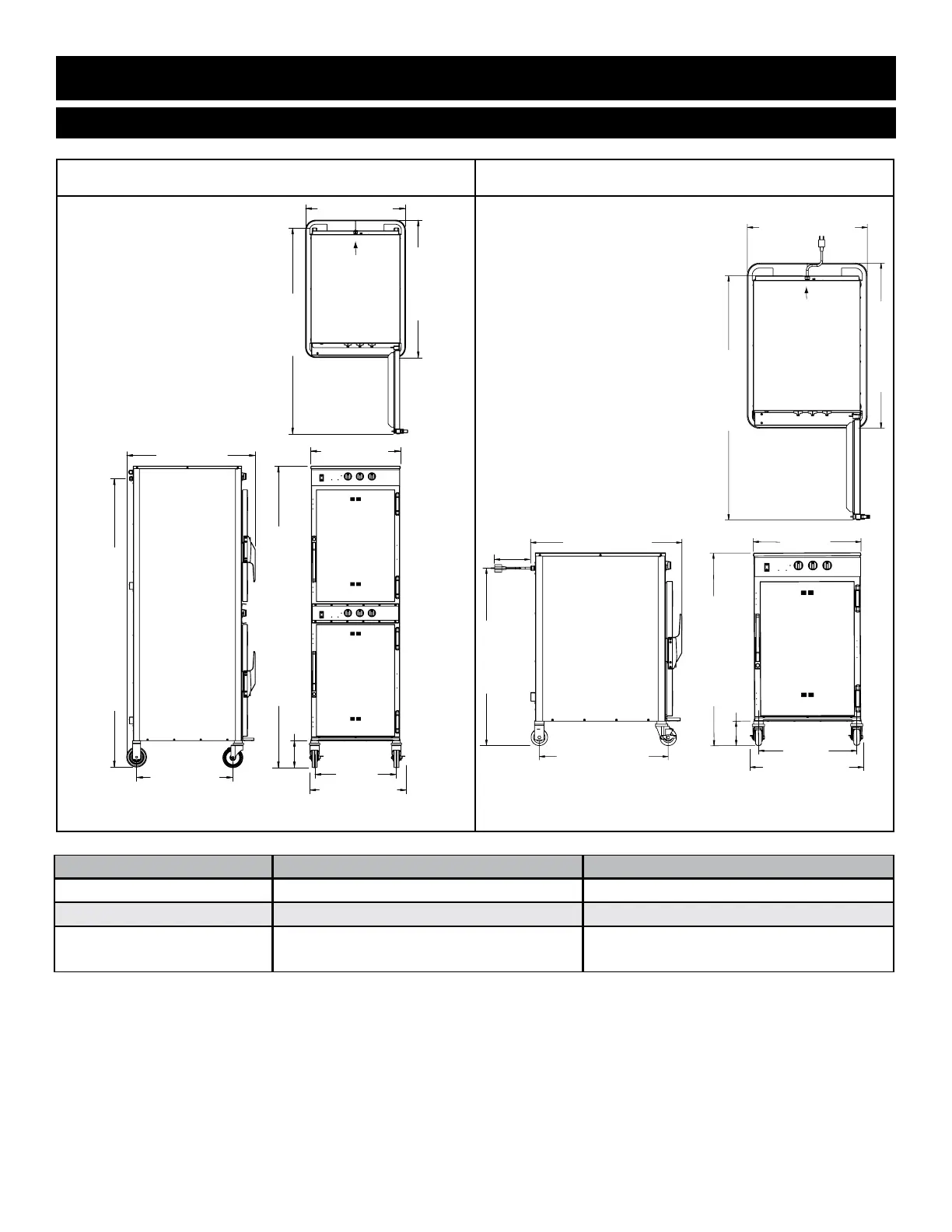
25-1/16" (636mm)
22-1/2" (572mm)
51" (1294mm)
6-13/16" (172mm)
34-1/2" (876mm)
Electrical
Connection
32-1/4" (819mm)
Shown with
optional bumper
20-1/2"
(521mm)
23-15/16" (608mm)
75-5/8" (1920mm) with 5 (127mm) casters*
24-1/8" (613mm)
72-1/4" (1835mm) Electrical Connection
*74-1/4" (1885mm) - with optional 3-1/2" (89mm) casters
*75-1/2" (1917mm) - with optional 6" (152mm) legs
1000-SK-I
25-1/16" (636mm)
22-1/2"
(572mm)
51" (1294mm)
5-1/8" (130mm)
40-3/16" (1021mm)
with 3-1/2 (89mm) casters
34-1/2" (876mm)
*38-1/2" (977mm) - with optional 2-1/2" casters
*41-15/16" (1064mm) - with optional 5" casters
*41-7/8" (1063mm) - with optional 6" legs
Electrical
Connection
20-1/2"
(521mm)
23-1/2" (597mm)
31-5/8" (802mm)
26-7/8" (683mm)
Cord Length
230V - 8 ft.
(2438mm)
37" (940mm)
Shown with
optional bumper
1000-SK/II
Model > 1000-SK-I 1000-SK/II
Net Weight
377 lb (171 kg) 203 lb (92 kg)
est.
Ship Weight
445 lb (202 kg)
est. 282 lb (101 kg) est.
Product/Pan Capacity
(per compartment)
120 lb (54 kg) maximum
Volume maximum: 60 quarts (76 liters)
120 lb (54 kg) maximum
Volume maximum: 60 quarts (76 liters)
Bekijk gratis de handleiding van Alto-Shaam 1000-SK-II, stel vragen en lees de antwoorden op veelvoorkomende problemen, of gebruik onze assistent om sneller informatie in de handleiding te vinden of uitleg te krijgen over specifieke functies.
Productinformatie
Merk | Alto-Shaam |
Model | 1000-SK-II |
Categorie | Oven |
Taal | Nederlands |
Grootte | 7268 MB |