Alto-Shaam 1000-S handleiding
Handleiding
Je bekijkt pagina 8 van 50

holding c a b i n e t s • i n s t a l l a t i o n /o p e r a t i o n /s e r v i c e manual - pg. 6
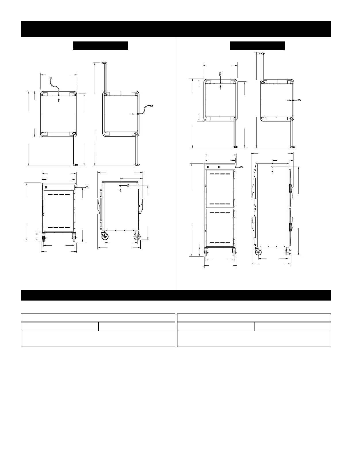
34-1/2" (876mm)
56-1/4" (1427mm)
27-5/8" (701mm)
Shown with
optional
bumper
Electrical
Connection
25-13/16" (655mm)
25-1/16" (636mm)
26-1/2" (672mm)
23-1/16"
(585mm)
72-3/8" (1838mm)
75-13/16" (1924mm)
with 5" (127mm) casters*
6-13/16" (172mm)
24-1/8"
(613mm)
33-13/16" (858mm)
16-7/8"
(429mm)
Electrical
Connection
Pass-Through
Option
*74-1/16
" (
1881mm) - with optional 3-1/2
"
(89mm) casters
*75-5/8
" (
1921mm) - with optional 6
"
(152mm) legs
54-1/4" (1377mm)
77-15/16" (1979mm)
Electrical
Connection
Pass-Through
Option
32-3/16" (817mm)
Cord Length:
120V - 9' (2743mm)
208-240V - 8' (2438mm)
230V - 8' (2438mm)
Model 1200-UP
INSTALLATION
56-3/16" (1427mm)
44" (1117mm)
with 5" (127mm) casters*
6-13/16" (173mm)
40-11/16" (1033mm)
40-11/16" (1033mm)
27-5/8" (701mm)
16-15/16" (429mm)
23-1/16"
(585mm)
26-1/2" (672mm)
24-1/8" (613mm)
32-3/16" (817mm)
33-13/16" (858mm)
Electrical
Connection
Pass-Through
Option
*45-11/16
" (
1161mm) - with optional 3-1/2
"
(89mm) casters
*43-7/8
" (
1113mm) - with optional 6
"
(152mm) legs
Electrical
Connection
Shown with
optional bumper
Pass-Through
Option
Electrical
Connection
34-1/2" (876mm)
54-1/4" (1377mm)
77-15/16" (1979mm)
25-7/8" (657mm)
25-1/16" (636mm)
Cord Length:
120V - 5' (1524 mm)
208-240V - 8' (2438 mm)
230V - 8' (2438 mm)
Model 1200-S
WEIGHT - 1200-UP
net: 333 lb (151g) ship: (est.) 393 lb (178 kg)
carton dimensions: (l x w x h)
35" x 35" x 82" (889mm x 889mm x 2083mm)
WEIGHT - 1200-S
net: 179 lb (81kg) est. ship: 224 lb (102kg) est.
carton dimensions: (l x w x h)
35" x 35" x 50" (889mm x 889mm x 1270mm)
WEIGHTS AND CAPACITIES
Bekijk gratis de handleiding van Alto-Shaam 1000-S, stel vragen en lees de antwoorden op veelvoorkomende problemen, of gebruik onze assistent om sneller informatie in de handleiding te vinden of uitleg te krijgen over specifieke functies.
Productinformatie
Merk | Alto-Shaam |
Model | 1000-S |
Categorie | Niet gecategoriseerd |
Taal | Nederlands |
Grootte | 8671 MB |