Alto-Shaam 100-HW/D4 handleiding
Handleiding
Je bekijkt pagina 11 van 23

Hot Food Drop-In Well Operation & Care Manual • 9
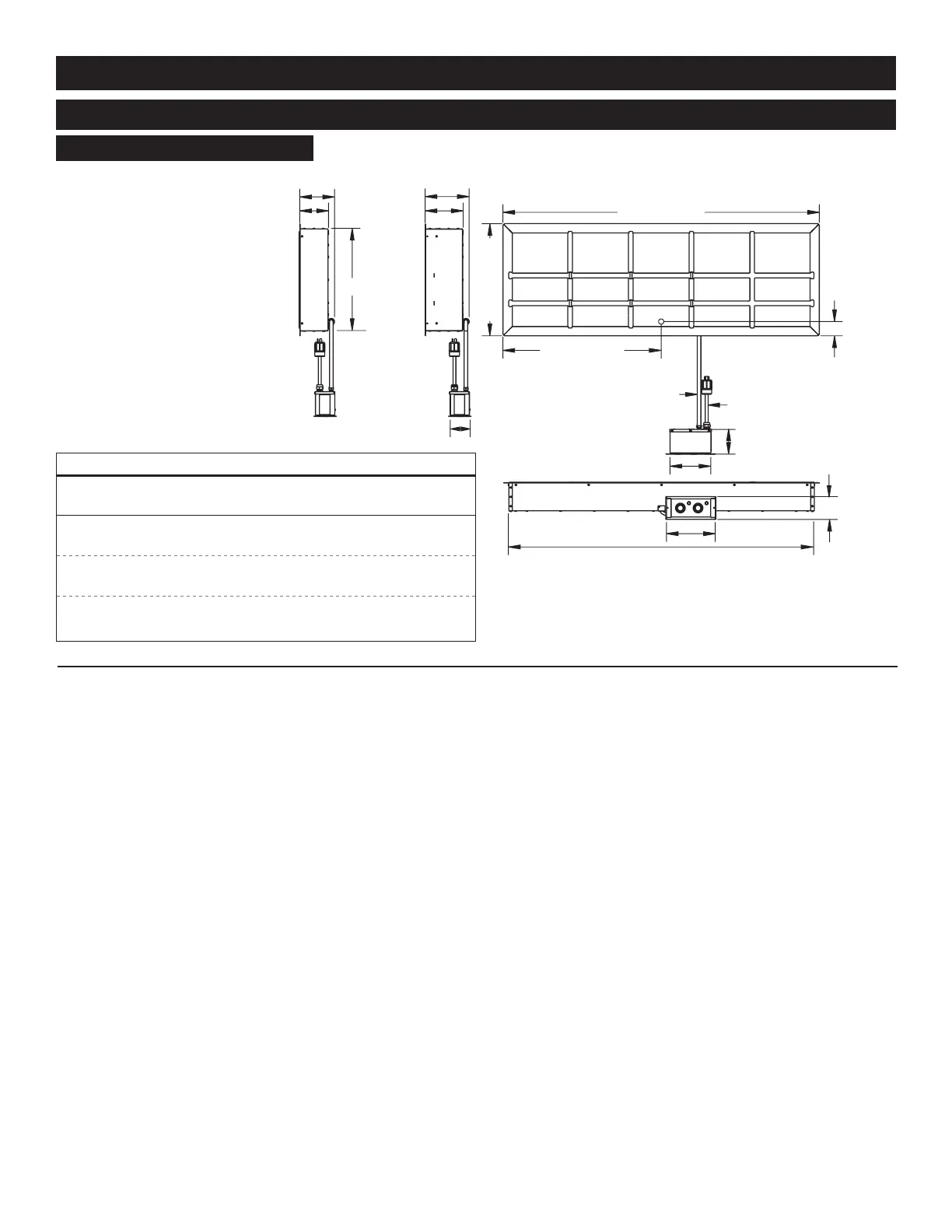
INSTALLATION
HW/D4
DEPTH
HW/D6 DEPTH
7-1/2" (190mm)
6-3/16" (157mm)
6-3/8" (162mm)
68-1/8" (1730mm)
5" (125mm)
9-1/2" (241mm)
8-3/16" (208mm)
24-3/16" (614mm)
3-1/8" (78mm)
to electrical cord
10-5/8" (267mm)
22-3/16" (563mm)
34-1/16" (865mm)
to electrical cord
One (1) flexible
water-tight tether
36" (914mm)
Electrical Cord
60" (1524mm)
65-3/4" (1670mm)
Control
Control
9" (229mm)
4-5/16" (110mm)
DIMENSIONS • CAPACITY
PRODUCT\PAN CAPACITY (based on 4" deep pans)
120 lb (54 kg) maximum
max. volume: 75 qt (95 L)
FULL-SIZE PANS*: Five (5) 12" x 20" x 4"
GN 1/1 (325mm x 530mm x 65mm)
HALF-SIZE PANS*: Ten (10) 12" x 10" x 4"
GN 1/2 (325mm x 265mm x 65mm)
THIRD-SIZE PANS*: Fifteen (15) 12" x 6" x 4"
GN 1/3 (325mm x 176mm x 65mm)
* will also accept 2-1/2" (65mm) deep pans; d6 units will accept 6" (153mm) deep pans
500-HW/D4 & 500-HW/D6
Bekijk gratis de handleiding van Alto-Shaam 100-HW/D4, stel vragen en lees de antwoorden op veelvoorkomende problemen, of gebruik onze assistent om sneller informatie in de handleiding te vinden of uitleg te krijgen over specifieke functies.
Productinformatie
Merk | Alto-Shaam |
Model | 100-HW/D4 |
Categorie | Niet gecategoriseerd |
Taal | Nederlands |
Grootte | 3910 MB |