Aiphone JP-8Z handleiding
Handleiding
Je bekijkt pagina 11 van 20

11
■
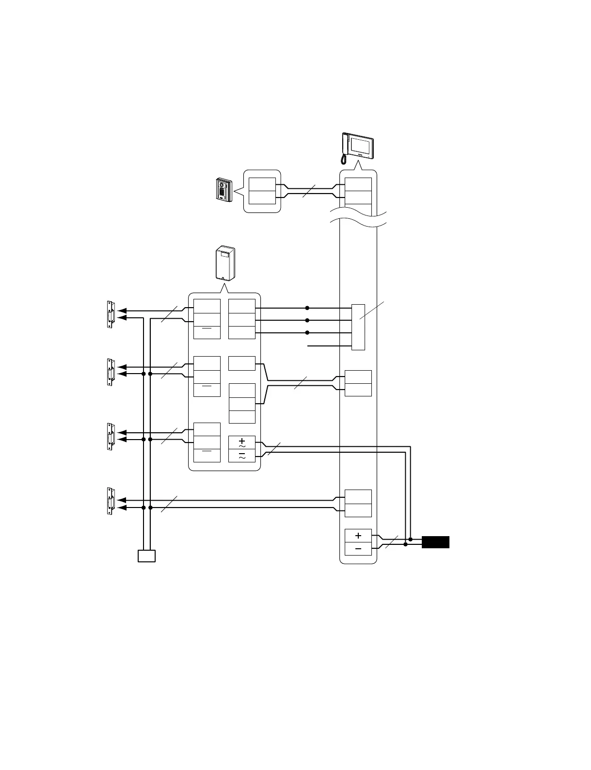
Adding selective door release to the system
Connect four door release devices to the master station via RY-3DL, a multiple door release adaptor.
Electric door strike 1 - 3 contacts release the door where communication is established.
PS24
A1
A2
L1
L1
PT
NP
2
NP
2
2
NP
2
NP
2
NP
2
NP
L2
L2
1A1
1A2
2A1
b1L1
b2C1
b3
L
L1
L3
C3
L3
L2
C2
L2
D1
E
D2
P
2
P
2
Master station
JP-4MED
Door station 1
JP-DA etc.
Electric door strike 1
EL-12S
Electric door strike 2
EL-12S
Electric door strike 3
EL-12S
Electric door strike 4
EL-12S
4-pin option connector
4 pin option connector identifi es active
door.
b1 is brown lead, active with door 1.
b2 is red lead, active with door 2.
b3 is orange lead, active with door 3.
b4 is yellow lead, active with door 4.
Brown
Red
Orange
Yellow
Multiple door
release adaptor
RY-3DL
AC transformer
Bekijk gratis de handleiding van Aiphone JP-8Z, stel vragen en lees de antwoorden op veelvoorkomende problemen, of gebruik onze assistent om sneller informatie in de handleiding te vinden of uitleg te krijgen over specifieke functies.
Productinformatie
Merk | Aiphone |
Model | JP-8Z |
Categorie | Niet gecategoriseerd |
Taal | Nederlands |
Grootte | 2721 MB |
Caratteristiche Prodotto
Kleur van het product | Grey, White |
Breedte | 123 mm |
Diepte | 61 mm |
Hoogte | 109 mm |
Merkcompatibiliteit | Aiphone |