Aiphone IXG-DM7-SBAI handleiding
Handleiding
Je bekijkt pagina 11 van 36

- 10 -
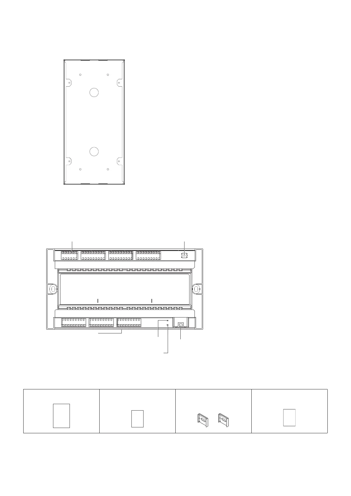
■ IXG-DM7-BOX
■ IXGW-LC
Included accessories
Notice Chinese RoHS declaration Stoppers x 2 Contact us
Front view
Front view
LAN (PoE) port
Status indicator (Green)
Status indicator (Orange)
Reset button
The MAC address is on the back of the device.
Low-voltage connection terminal
Lock release lever (Back)
Bekijk gratis de handleiding van Aiphone IXG-DM7-SBAI, stel vragen en lees de antwoorden op veelvoorkomende problemen, of gebruik onze assistent om sneller informatie in de handleiding te vinden of uitleg te krijgen over specifieke functies.
Productinformatie
Merk | Aiphone |
Model | IXG-DM7-SBAI |
Categorie | Niet gecategoriseerd |
Taal | Nederlands |
Grootte | 3605 MB |