Aiphone GT-203HB handleiding
Handleiding
Je bekijkt pagina 4 van 52

- 4 -
PS24
PS24 PS24
PS24 PS24
PS24
*2
2
B
A
C
3
E
D
F
5
K
J
L
8
U
T
V
4
H
G
I
6
N
M
O
1
0
9
Y
X
W
Z
7
R
Q
P
S
2
B
A
C
3
E
D
F
5
K
J
L
8
U
T
V
4
H
G
I
6
N
M
O
1
0
9
Y
X
W
Z
7
R
Q
P
S
2
B
A
C
3
E
D
F
5
K
J
L
8
U
T
V
4
H
G
I
6
N
M
O
1
0
9
Y
X
W
Z
7
R
Q
P
S
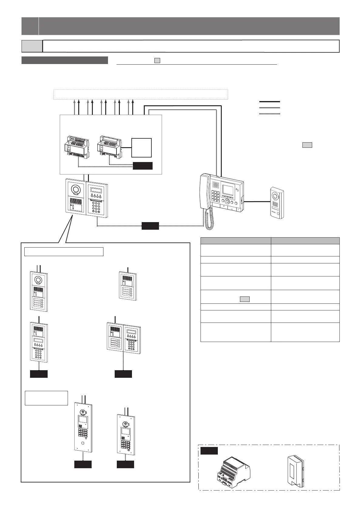
This system is constructed using 2 wires for audio and 2 wires for video and requires minimal work for installation. A maximum of 6 video trunk
lines can be used from the video bus controller and audio signal lines use a distribution point from the bus controller. Audio systems can also be
confi gured.
DP
: Audio signal line
: Video signal line
: Power supply line
Video bus
control unit
GT-VBC
Bus control
unit
GT-BC
DP: Distribution Point
( Not provided by Aiphone except
for Europe and North America.)
Guard station
GT-MKB-N
Entrance station
Audio/video + 10 key type
e.g.) GT-VB + GT-DB(-V, -VN) +
GT-NSB + GT-10K
Audio/video + direct select
e.g.) GT-VB +
GT-DB(-V, -VN) +
GT-SW
Audio + 10 key
e.g.) GT-DB(-V, -VN) +
GT-NSB + GT-10K
Audio + direct select
e.g.) GT-DB(-V, -VN) +
GT-SW
Audio + direct
select + 10 key
e.g.) GT-DB(-V, -VN)
+ GT-NSB +
GT-10K +
GT-SW
GT-DMB-LVN
(Magnetic-loop and VIGIK-linked enabled)
GT-DMB-N
Device Capacity
Entrance station Max. 5 (max. 3 per trunk from the
DP) *
3
*
4
Guard station (GT-MKB-N) Max. 2
Residential/tenant station Max. 48 (max. 25 per trunk from
the DP) *
5
Residential/tenant stations in the
same residence/tenant
Max. 4 *
6
4-way video junction unit
(GT-4Z, see section
1-3
.)
Max. 6 per residential/tenant
trunk
Bus control unit (GT-BC) 1 required
Video bus control unit (GT-VBC
[STD])
Max. 1
Sub residential/tenant station
(GT-2H-L, GT-2H)
Max. 3 (connectable to the
residential/tenant station GT-2C-L
or GT-2C only)
*3: If GT-DB-V, GT-DB-VN or an external door release button is
connected to an entrance station that includes GT-SW, a
maximum of 3 entrance stations can be connected to the system.
*4: Up to 3 entrance stations can be connected per audio signal line
from the DP. If GT-DB-V or GT-DB-VN is used in an entrance
station, the maximum number of entrance stations is 2.
*5: The maximum is 100 stations with GT-1D only.
(GT-1D: Max. 50 stations per trunk)
*6: Max. 4 under the following conditions only:
• GT-1A or GT-1D × Max. 4
• GT-1C7(-L) × 1 + GT-1A or GT-1D × Max. 3
• GT-1M3(-L) × 1 + GT-1A or GT-1D × Max. 3
• GT-1M3(-L) × 2 + GT-1A or GT-1D × Max. 2
• GT-2C(-L) × Max. 4
Standard system confi guration & capacity1-1
Outline of standard system
Entrance station (modular type)
Entrance station
(all-in-one type)
Residential/tenant trunks 1 to 5 [max. 48 stations (max. 25 per trunk) ]
*1
1 SYSTEM CONFIGURATIONS
* Refer to section
4
"WIRING" for details about wiring and connection.
*1: Refer to section
1-3
for details
about residential/tenant station
confi gurations.
*2: Make sure that a power supply is
shared between GT-BC and
GT-VBC.
Video door station
JO-DV
PS-2420
PS-2420S
PS-2420UL
PS-2420BF
PS-2420DM
PS24
Power supply
Bekijk gratis de handleiding van Aiphone GT-203HB, stel vragen en lees de antwoorden op veelvoorkomende problemen, of gebruik onze assistent om sneller informatie in de handleiding te vinden of uitleg te krijgen over specifieke functies.
Productinformatie
| Merk | Aiphone |
| Model | GT-203HB |
| Categorie | Niet gecategoriseerd |
| Taal | Nederlands |
| Grootte | 9766 MB |
Caratteristiche Prodotto
| Kleur van het product | Beige |
| Gewicht | - g |
| Aantal per verpakking | 1 stuk(s) |
| Merkcompatibiliteit | Aiphone |
| Type product | Opbouwdoos |







