Aiphone GT-104HB handleiding
Handleiding
Je bekijkt pagina 48 van 52

- 48 -
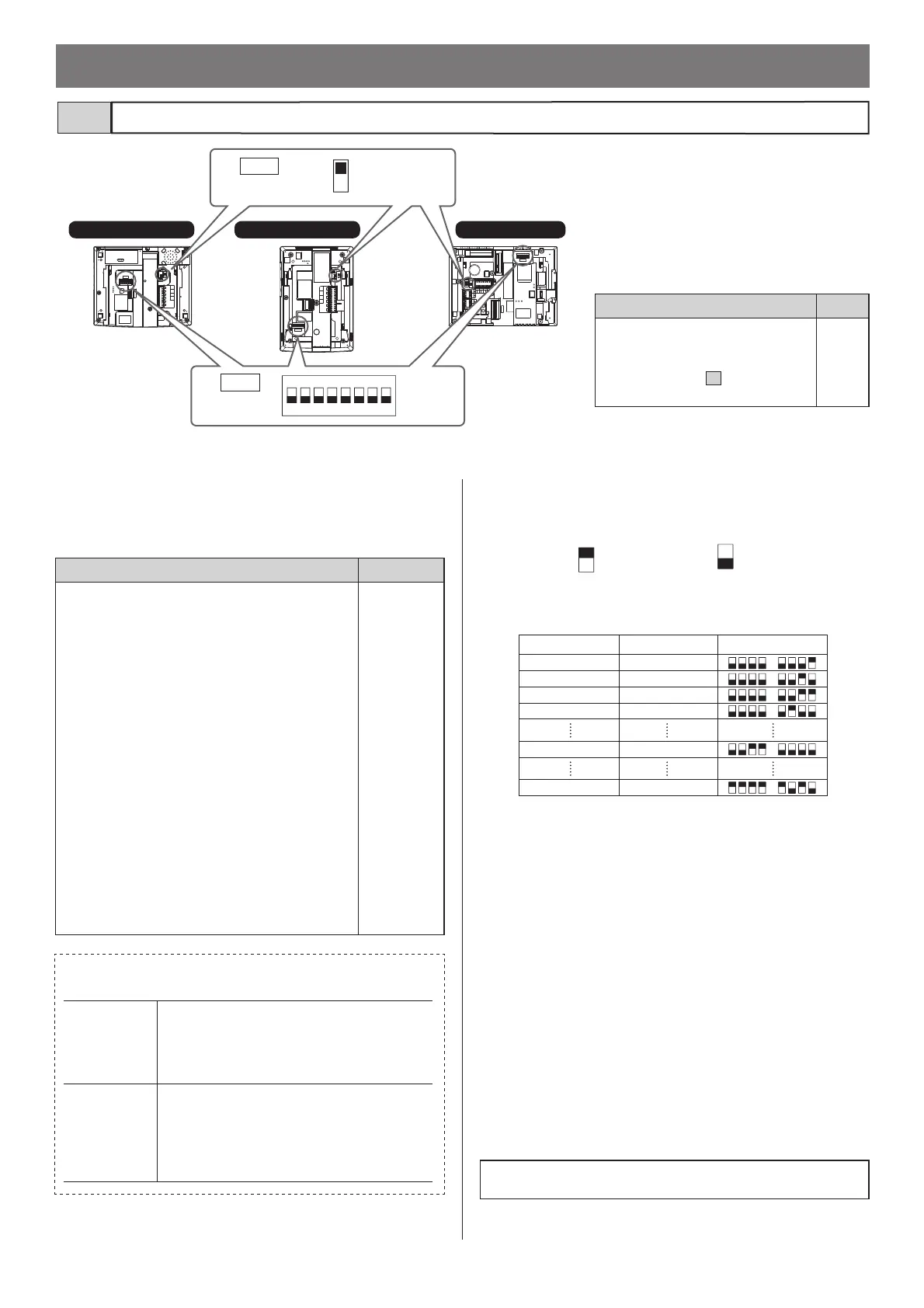
GT-1C7-L/GT-1C7
GT-1M3-L/GT-1M3
GT-2C-L/GT-2C
SW2
SW2
SW2
ON
1
2 3
4
5 6 7
8
SW2
A
B
A
B
A
B
2
SW1
1
A
B
Switch settings (for residential/tenant stations only)5-2
Setting method
1 Change the decimal notation ID to binary to set the
residence ID.
• 1 indicates (ON) and 0 indicates (OFF).
• For binary notation, refer to the DIP switch & ID list for
residential/tenant stations
(
*
1)
in the setup tool and perform
settings as shown below.
2 • Create a correlation table with the setup tool
between the ID set for residences/tenants and the
residential/tenant station names and upload this to
the entrance station or guard station.
* For information on how to use the setup tool, see the GT
SYSTEM Setting Manual and Aiphone GT Setup Tool
for Windows on the Aiphone website.
Saving programmed data and resident information data to
your PC is recommended.
• In addition, set up the system for the entrance
station(s), guard station(s), and residential/tenant
stations. (Refer to the GT SYSTEM Setting
Manual.)
(*1): The DIP switch & ID list for residential/tenant station is
available from the Aiphone website.
Aiphone website: http://www.aiphone.net/
NOTE: Refer to the GT SYSTEM Setting Manual for
confi guring the system setup.
1
2
3
4
0000 0001
0000 0010
0000 0011
0000 0100
0011 0000
1111 1010
48
250
Binary notation
Decimal notation
DIP switches
2 SW2
Residential/tenant stations must be linked to entrance/guard stations
for enabling calling and communication.
All video residential/tenant stations can have "UNIT Link-ID" set by
using SW2.
Function Default
The DIP switches of SW2 must be used when
setting UNIT Link-IDs by using the "Manual
Setting" method.
If using the "Automatic Setting" method, do not
change the default setting "0000 0000".
• Automatic setting:
Set the DIP switches to "0000 0000".
The UNIT Link-ID is set automatically.
* For GT-1D and GT-1A, UNIT Link-ID is
always set automatically.
• Manual setting:
Set the UNIT Link-ID by using the DIP
switches.
Decide the UNIT Link-IDs in advance, and
coordinate with the system installer for SW2
DIP switch settings.
NOTE:
If there is mixture of video and audio residential/
tenant stations in the site, only Automatic setting
should be used.
1: OFF
2: OFF
3: OFF
4: OFF
5: OFF
6: OFF
7: OFF
8: OFF
(0000 0000)
How to set "UNIT Link-ID"
There are two methods for link setting.
By Hand-
shaking
The entrance/guard stations must be put into
programming mode and communication must
be established one-by-one with each resident
station. Either "Automatic setting" or "Manual
setting" is available.
By GT Setup
Tool
Every residential/tenant station must be set
with a unique residence UNIT Link-ID, as
shown below. Link establishment is performed
with the GT setup tool. Only the "Manual
setting" for UNIT Link-IDs is available. The
DIP swiches on SW2 must be set in advance.
1 SW1
Function Default
To terminate a residential/tenant
station, leave SW1 set to "A".
Otherwise, set to "B".
* Refer to section
4
"WIRING"
for details about the SW1 settings.
A
Bekijk gratis de handleiding van Aiphone GT-104HB, stel vragen en lees de antwoorden op veelvoorkomende problemen, of gebruik onze assistent om sneller informatie in de handleiding te vinden of uitleg te krijgen over specifieke functies.
Productinformatie
Merk | Aiphone |
Model | GT-104HB |
Categorie | Niet gecategoriseerd |
Taal | Nederlands |
Grootte | 9766 MB |
Caratteristiche Prodotto
Kleur van het product | Beige |
Merkcompatibiliteit | Aiphone |
Compatibiliteit | GF-4F |
Type product | Opbouwdoos |