Aiphone GT-104HB handleiding
Handleiding
Je bekijkt pagina 39 van 52

- 39 -
IN
R1
R2
C
CE
KE
RY
RY
K
CN4
SW
SW
JP1
JP4
IN
R1
R2
C
CE
KE
RY
RY
K
CN4
SW
SW
JP1
JP4
GT-BC
DP
1P
NP
1P
NP
1P
NP
NP
NP
NP
NP
AC
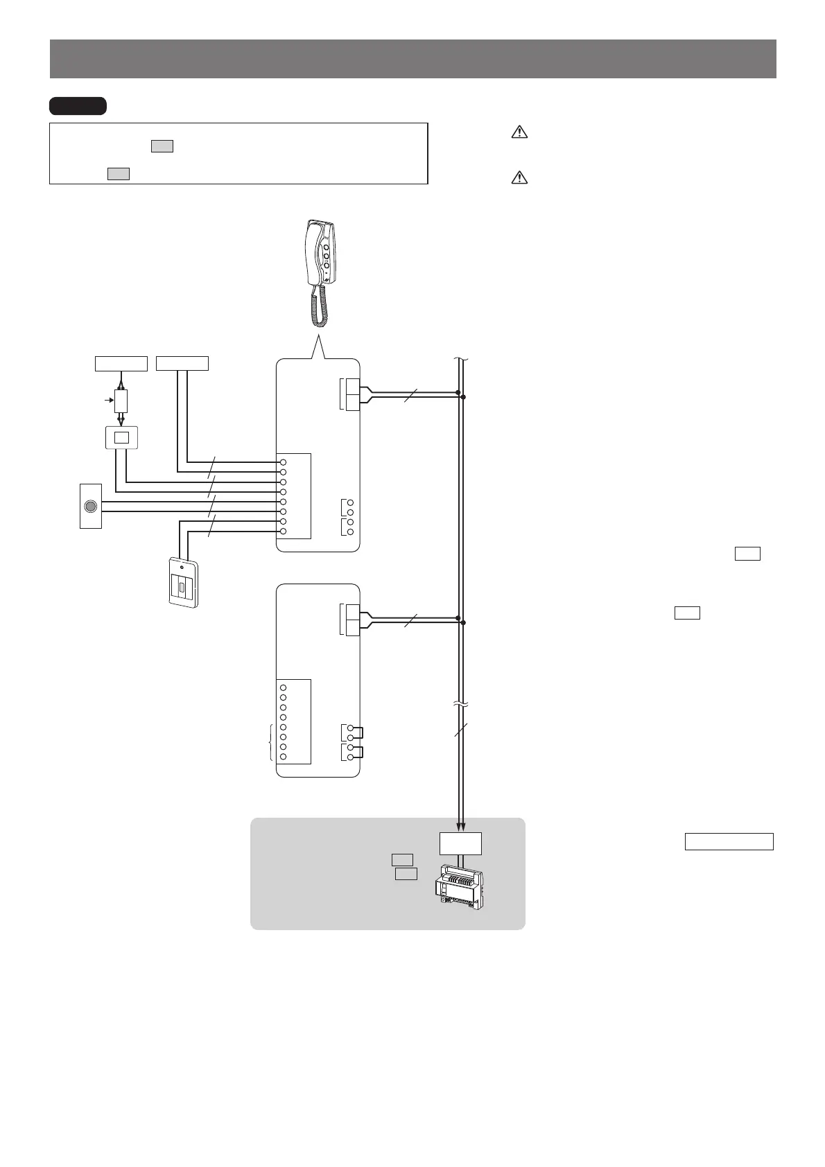
GT-1D
Residential/tenant station (audio only)
GT-1D
GT-1D
* Connect to the audio bus control
unit.
Standard system: section
4-1
Expanded system: section
4-5
(No connection is needed to the
video bus control unit GT-VBC.)
NP: Non-polarized
NOTES:
• Refer to section
4-7
for details about wiring to the option connector.
• To connect wires, the case must be removed from the chassis. Refer to
section
3-7
for how to remove the case.
Emergency
alarm switch
(*2)
(GFK-PS
available in N.
America only)
Doorbell
(*1)
(third party
product)
Turn off the GT-BC control unit before
connecting wires. Failure to do so could
damage the station.
Be careful not to damage the circuit board
when connecting wires and mounting the
station. Failure to do so could damage the
station.
(*3)
(*4)
(*1): Doorbell
• N/O contact (non-locked type)
• DC 12 V/0.1 A or higher
(*2): Emergency alarm switch
• N/C contact (locked type)
• DC 12 V/0.1 A or higher
(*3): When using an emergency alarm switch,
remove the jumper wire from the
JP1
connectors. Otherwise, leave the jumper
wire connected.
When using Doctor call, remove the
jumper wire from the
JP4
connectors.
Otherwise, leave the jumper wire
connected.
(*4): Only one emergency alarm switch and
one doorbell can be connected to the
same station. Each station uses its own
option connector for external devices
used for that tenant.
(*5): When making a connection to the CN4
connector, remove the protective cap.
Black
Gray
Yellow
Red
Blue
Orange
Brown
White
Option contact
output
Buzzer etc.
(*3)
GT-RY
(*5)
(*5)
Bekijk gratis de handleiding van Aiphone GT-104HB, stel vragen en lees de antwoorden op veelvoorkomende problemen, of gebruik onze assistent om sneller informatie in de handleiding te vinden of uitleg te krijgen over specifieke functies.
Productinformatie
Merk | Aiphone |
Model | GT-104HB |
Categorie | Niet gecategoriseerd |
Taal | Nederlands |
Grootte | 9766 MB |
Caratteristiche Prodotto
Kleur van het product | Beige |
Merkcompatibiliteit | Aiphone |
Compatibiliteit | GF-4F |
Type product | Opbouwdoos |