Aiphone GF-2B handleiding
Handleiding
Je bekijkt pagina 36 van 52

- 36 -
OUTOUT IN INOUTOUT IN INOUTOUT IN IN
B1
B2
B1
B2
R1
R2
R1
R2
C
CE
K
KE
A
B
SW1
B1
B2
B1
B2
R1
R2
R1
R2
C
CE
K
KE
A
B
SW1
B1
B2
B1
B2
R1
R2
R1
R2
C
CE
K
KE
A
B
SW1
YEL B1
WHT
B2
LINE
IN
YEL B1
WHT
B2
LINE
OUT
BLU B1
WHT
B2
OUT
YEL B1
WHT
B2
LINE
IN
YEL B1
WHT
B2
LINE
OUT
BLU B1
WHT
B2
OUT
GT-1C7-L/GT-1C7
GT-1C7-L/GT-1C7
GT-1Z
1P
NP
1P
NP
1P
NP
1P
NP
1P
NP
1P
NP
GT-VBC
GT-BC
DP
GT-1M3-L/GT-1M3
GT-1M3-L/GT-1M3
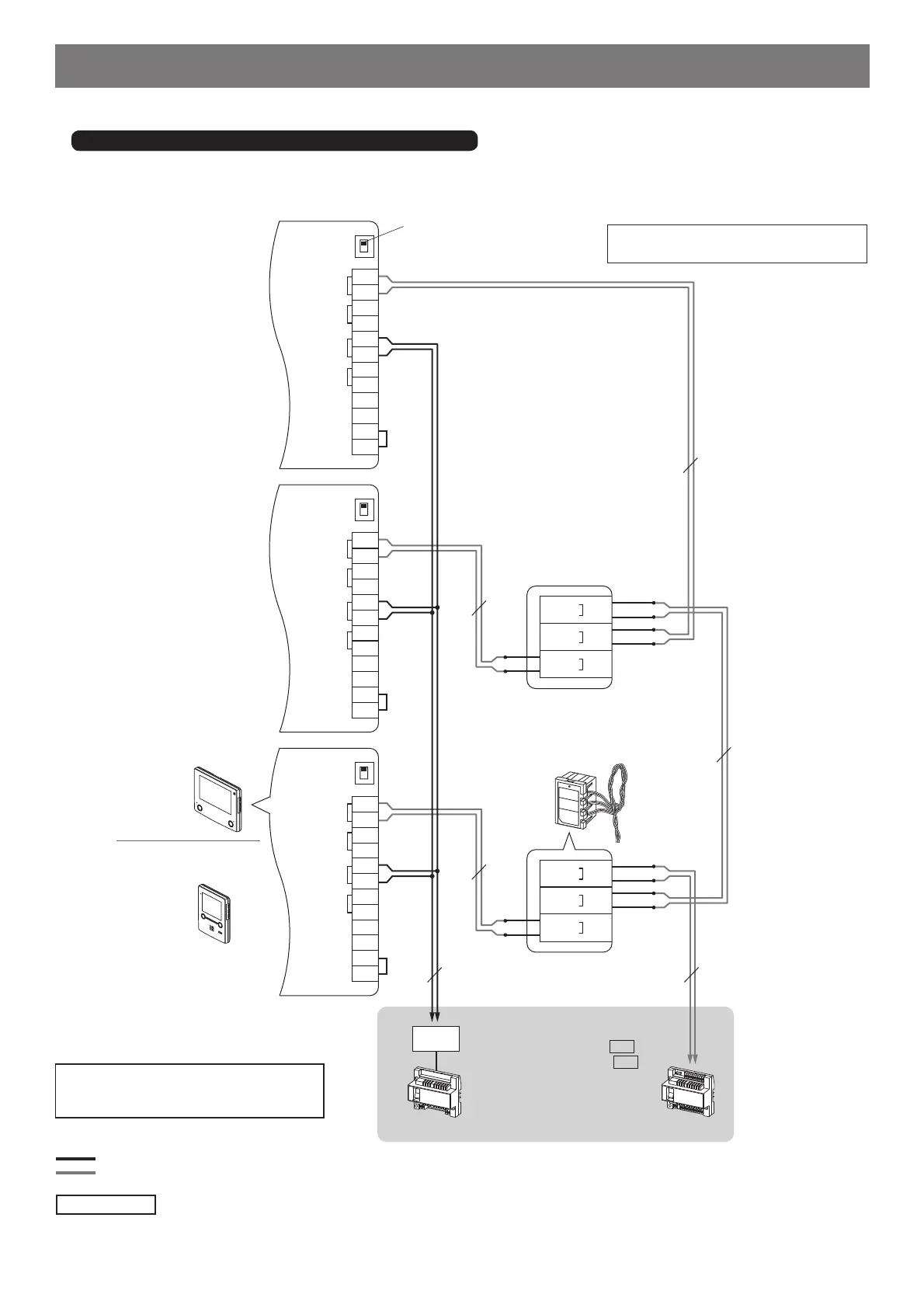
■ GT-1Z wiring method (using the video 1-zone divider)
* The following diagram is a wiring example using the residential/tenant stations GT-1C7-L/GT-1C7 and GT-1M3-L/GT-1M3.
Video 1-zone divider
GT-1Z
Blue
White
Yellow
Yellow
White
White
Blue
White
Yellow
Yellow
White
White
Residential/tenant station
GT-1M3-L/GT-1M3
Residential/tenant station
GT-1C7-L/GT-1C7
* Connect to the bus control units.
Standard system: section
4-1
Expanded system: section
4-5
NP: Non-polarized
: Audio signal line
: Video signal line
Termination setting:
For terminating a residential/tenant
station, set SW1 to "A".
GT-2C-L/GT-2C, GT-1C7-L/GT-1C7, GT-1M3-L/GT-1M3
NOTE: Refer to pages 34 and 35 for the
wiring details of residential/tenant
stations.
NOTE: Do not connect the GT-1Z to the
terminal residential/tenant station.
(Please note that images and terminal position in this manual may differ from the actual product.)
Bekijk gratis de handleiding van Aiphone GF-2B, stel vragen en lees de antwoorden op veelvoorkomende problemen, of gebruik onze assistent om sneller informatie in de handleiding te vinden of uitleg te krijgen over specifieke functies.
Productinformatie
| Merk | Aiphone |
| Model | GF-2B |
| Categorie | Niet gecategoriseerd |
| Taal | Nederlands |
| Grootte | 9766 MB |
Caratteristiche Prodotto
| Kleur van het product | Zwart |
| Gewicht | - g |
| Montagewijze | Muur |
| Aantal per verpakking | 1 stuk(s) |
| Merkcompatibiliteit | Aiphone |







