Aiphone GF-1P handleiding
Handleiding
Je bekijkt pagina 42 van 52

- 42 -
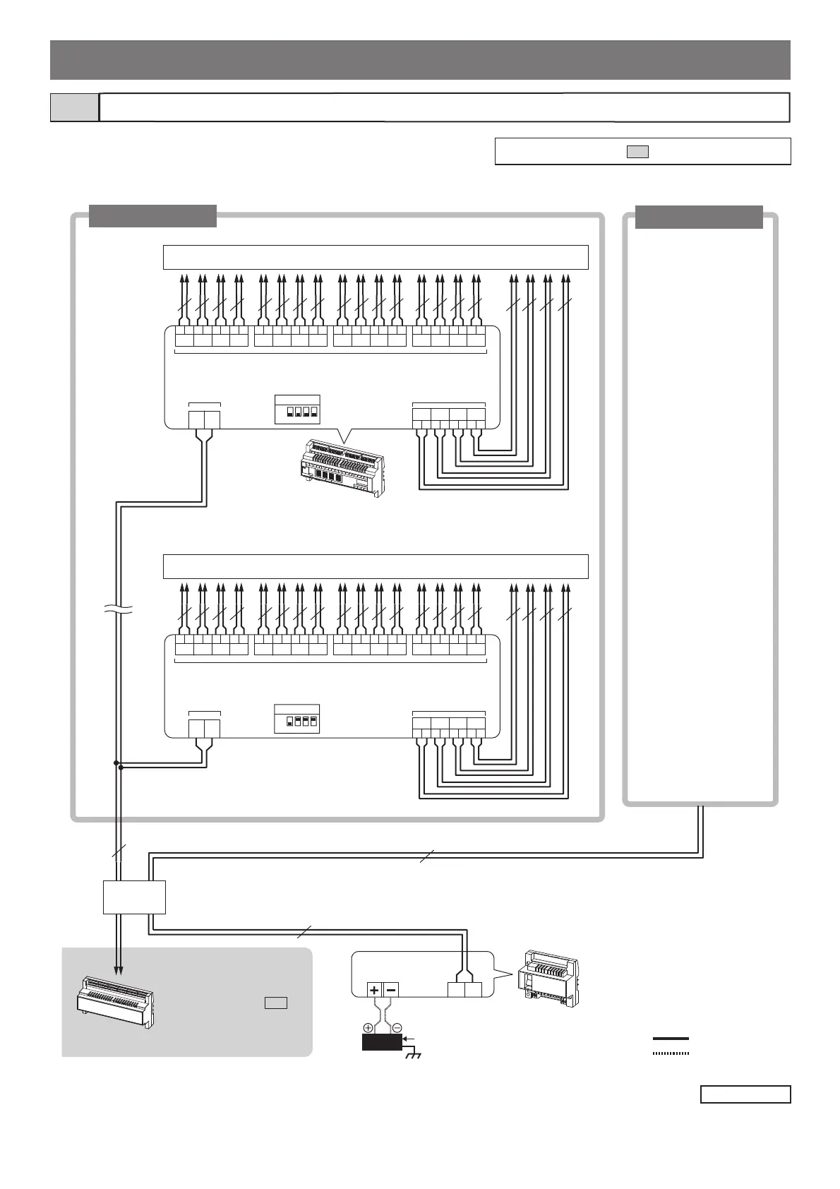
Lift control system (for expanded system only)4-6
R2
R1
LIFT CONTROLLER
LIFT CONTROLLER
GT-BCX
RY1 RY2 RY3 RY4
RY5 RY6 RY7 RY8 RY9
RY10 RY11 RY12 RY14RY13 RY15 RY16
RY18RY17 RY19
RY20
R2
R1
LIFT CONTROLLER
LIFT CONTROLLER
GT-BCX
RY1 RY2 RY3 RY4
RY5 RY6 RY7 RY8 RY9
RY10 RY11 RY12 RY14RY13 RY15 RY16
RY18RY17 RY19
RY20
MAIN DC24V
R1
R2
PS24
AC
DP
1P
NP
1P
NP
1P
NP
1P
NP
1P
NP
1P
NP
1P
NP
1P
NP
1P
NP
1P
NP
1P
NP
1P
NP
1P
NP
1P
NP
1P
NP
1P
NP
1P
NP
1P
NP
1P
NP
1P
NP
1P
NP
1P
NP
1P
NP
1P
NP
1P
NP
1P
NP
1P
NP
1P
NP
1P
NP
1P
NP
1P
NP
1P
NP
1P
NP
1P
NP
1P
NP
1P
NP
1P
NP
1P
NP
1P
NP
1P
NP
1P
NP
1P
NP
1P
NP
ON
OFF
ID
1 2 3
4
ON
OFF
ID
1 2 3
4
Lift control adaptor GTW-LC
* Max. 8 GTW-LC can be connected per trunk.
GTW-LC
GT-BCXB-N
Lift controller (third party product)
Lift controller (third party product)
Lift control trunk 1
Lift control trunk 2
* Connect to the expanded
bus control unit.
GT-BCXB-N.
Refer to section
4-5
for
detailed connection
diagram.
Max. 16 adaptors (GTW-LC) can be connected to a system.
* Max. 8 adaptors (GTW-LC) per trunk.
Bus control unit
GT-BC
DP: Distribution Point
(Not provided by Aiphone
except for Europe and
North America.)
NP: Non-polarized
Same as lift control trunk 1.
: Audio signal line
: Power supply line
NOTE: Refer to section
5-1
for the ID switch settings.
Bekijk gratis de handleiding van Aiphone GF-1P, stel vragen en lees de antwoorden op veelvoorkomende problemen, of gebruik onze assistent om sneller informatie in de handleiding te vinden of uitleg te krijgen over specifieke functies.
Productinformatie
| Merk | Aiphone |
| Model | GF-1P |
| Categorie | Niet gecategoriseerd |
| Taal | Nederlands |
| Grootte | 9766 MB |
Caratteristiche Prodotto
| Kleur van het product | Zink |
| Gewicht | - g |
| Materiaal | Zink |
| Aantal per verpakking | 1 stuk(s) |
| Merkcompatibiliteit | Aiphone |







