Advantech SOM-5893 handleiding
Handleiding
Je bekijkt pagina 15 van 76

9 SOM-5893 User Manual
Chapter 2 Mechanical Information
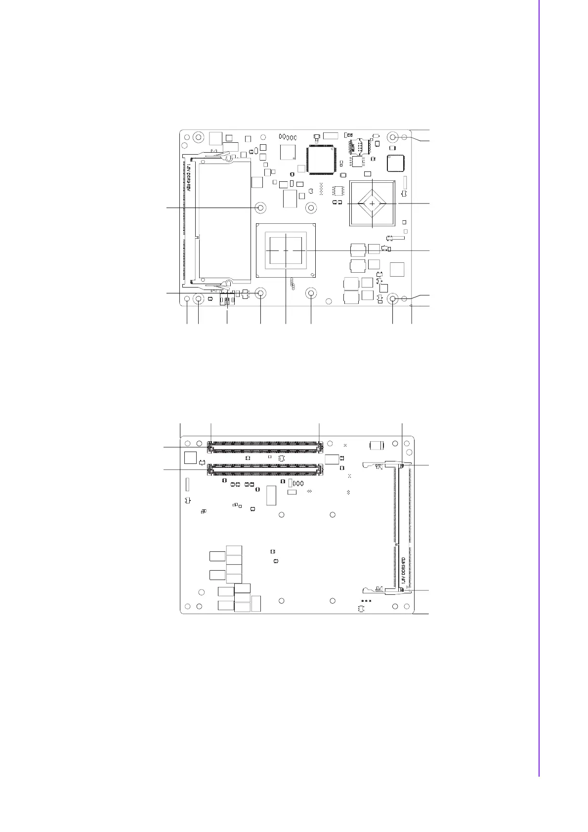
2.2 Mechanical Drawing
For more detail about 2D/3D models, please see the Advantech COM support ser-
vice website http://com.advantech.com.
Figure 2.3 Board Mechanical Drawing - Front
Figure 2.4 Board Mechanical Drawing - Back
0
10.2
54.1
67.8
81.4
99.38
114.80
121
0
4
29.98
55.38
91
95
7
53
0
12.58
79.38
77
89
0
16.5
74.2
118.6
Bekijk gratis de handleiding van Advantech SOM-5893, stel vragen en lees de antwoorden op veelvoorkomende problemen, of gebruik onze assistent om sneller informatie in de handleiding te vinden of uitleg te krijgen over specifieke functies.
Productinformatie
Merk | Advantech |
Model | SOM-5893 |
Categorie | Niet gecategoriseerd |
Taal | Nederlands |
Grootte | 6138 MB |