Handleiding
Je bekijkt pagina 37 van 41

31 IDK-1112R-50XGA1 User Manual
Appendix A LCD Optical Characteristics
Note! 5-point luminance uniformity is defined by dividing the maximum lumi-
nance values by the minimum test point luminance
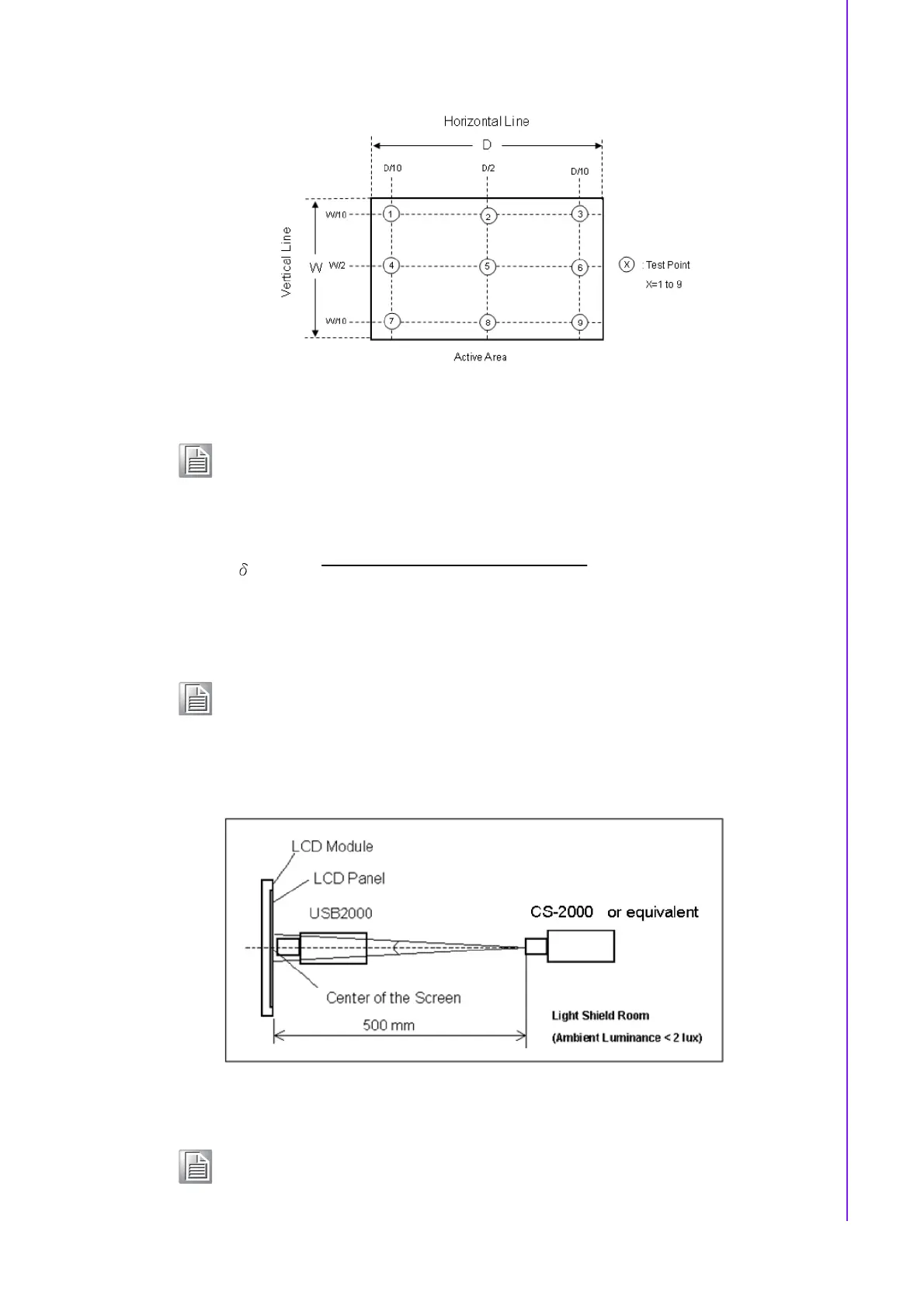
Note! Measurement method
The LCD module should be stabilized at given temperature for 20 min-
utes to avoid abrupt temperature change during measuring. In order to
stabilize the luminance, the measurement should be executed after
lighting the backlight for 20 minutes in a stable, windless and dark room.
Note! Definition of response time
W5
=
Maximum [L (1) ~ L (5)]
Minimum [L (1) ~ L (5)]
Bekijk gratis de handleiding van Advantech IDK-1112, stel vragen en lees de antwoorden op veelvoorkomende problemen, of gebruik onze assistent om sneller informatie in de handleiding te vinden of uitleg te krijgen over specifieke functies.
Productinformatie
| Merk | Advantech |
| Model | IDK-1112 |
| Categorie | Monitor |
| Taal | Nederlands |
| Grootte | 4196 MB |







