Advance SC500 handleiding
Handleiding
Je bekijkt pagina 12 van 116

ENGLISH INSTRUCTIONS FOR USE
10 SC500 - 9099980000
11/2014
revised 07/2017
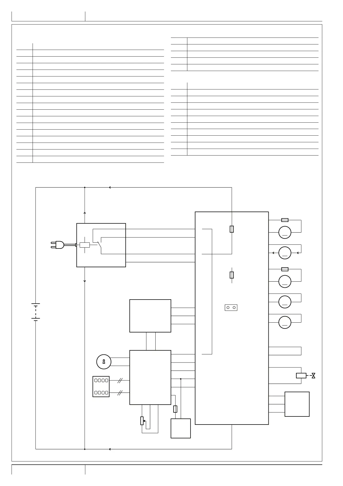
WIRING DIAGRAM
Key
BAT 24V batteries
C1 Battery connector
C2 Battery charger connector
CH Battery charger
EB1 Main controller machine
EB2 Display controller
EB3 User interface controller
EV1 Solenoid valve
F1 Main controller fuse
F2 Signal circuit fuse
F3 USB fuse
F4 Brush motor fuse
F5 Drive system motor fuse
IB Smart Key
M1 Brush motor
M2 Vacuum system motor
M3 Drive system motor
M4 EcoFlex pump (*)
M5 Brush deck actuator
RV1 Speed potentiometer
SW1 Detergent level sensor
TCU TrackClean (optional)
USB USB port (optional)
Color codes
BK Black
BU Blue
BN Brown
GN Green
GY Grey
OG Orange
PK Pink
RD Red
VT Violet
WH White
YE Yellow
BK
C1-
BK
YE
EV1
VT
J2.2
J2.1
J1.2
RD
J1.1
B-
EB1
RD
C1+
RD
B+
SW1
EB2
USB
J3.3
WH-BK
WH
J3.2
J1.2
J1.3
J1.1
J6.2 J6.1
RD
WH
BN
J3.1
J1.4
BK
J3.4
BK
C2.B
CH
C2.A
WH
EB3
IB
WH
J1.3
J1.4
OG
J3.5
J1.5
J1.6
F2
J1.7
J1.8
RD
YE
BN
GN
J4.1
J4.2
J4.3
J4.4
24V
BA
T
J3
J2
J4.2
M2
RD
M1
BU
VA-
RD
VA+
BU
BR-
RD
BR+
M1
M2
GY
M3
GY
M4
BU
M5
J5.2
BN
J5.1
BU
J5.3
BK
+
+
OUT
-
-
J4.1 J4.3
RD
BN BK BU
RV1
TCU
J7.5
J7.1
J7.6
RD
BU
BN
J6
BK
BK
F4
F5
RD
RD
F1
F3
WHPK
J5.2
J5.1
P100856
9099980000(C)07-2017.indb 10 14/06/2017 08:24:04
Bekijk gratis de handleiding van Advance SC500, stel vragen en lees de antwoorden op veelvoorkomende problemen, of gebruik onze assistent om sneller informatie in de handleiding te vinden of uitleg te krijgen over specifieke functies.
Productinformatie
Merk | Advance |
Model | SC500 |
Categorie | Boenmachine |
Taal | Nederlands |
Grootte | 23769 MB |